
ImmoFairKauf GmbH
Robin Jurrmann
015 ···
Nr. anzeigenPreise & Kosten
Provision für Käufer
4,165% inkl. 19% MwSt. des notariellen Kaufpreises
Lage
Die Hospitalstraße befindet sich im Stadtteil Neue Neustadt in Magdeburg, der Landeshauptstadt von Sachsen-Anhalt. Die Neue Neustadt ist ein lebendiger und historisch geprägter Stadtteil, der durch seine Mischung aus Wohn- und Gewerbegebieten sowie seine Nähe zum Stadtzentrum besticht.
Die Anbindung an den öffentlichen...
Die Immobilie
Zu diesem Angebot wurden vom Anbieter keine weiteren Daten hinterlegt. Für weitere Informationen bitte den Anbieter kontaktieren.
Nach Informationen fragenDetails
Objektbeschreibung
Dieses zentral gelegene Grundstück in der Hospitalstraße im Stadtteil Neue Neustadt bietet eine attraktive Gelegenheit für Investoren, Bauträger oder Privatpersonen. Durch die hervorragende Lage und die gute Infrastruktur eignet sich das Grundstück ideal für eine Wohn- oder Gewerbenutzung.
Die Grundstücksfläche...
Ausstattung
+ 610 m² Grundstück
+ Baugenehmigung vorhanden
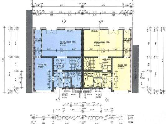
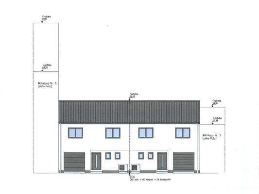
+ Planungsunterlagen für ein Zweifamilienhaus mit 281,02 m² Wohnfläche liegen vor
Weitere Informationen
Sonstiges
Alle Daten in diesem Exposé beruhen auf Angaben des Verkäufers. Die Objektangaben wurden mit großer Sorgfalt zusammengestellt. Für die Richtigkeit der Verkäufer-, Anbieter- und Angebotsangaben können wir keine Haftung übernehmen. Irrtümer bleiben vorbehalten.
Anfragen ohne Telefonnummer und Adresse können...
Anbieter der Immobilie
Online-ID: 2h8v45u
Referenznummer: 31
Finde Angebote wie dieses
Hier geht es zu unserem Impressum, den Allgemeinen Geschäftsbedingungen, den Hinweisen zum Datenschutz und nutzungsbasierter Online-Werbung.