
ISS Communication Services GmbH
Herr Michael Schwalbe
+49 ···
Nr. anzeigenPreise & Kosten
Provision für Käufer
Bitte beachte, das Angebot beinhaltet bei Vertragsabschluss die Zahlung einer Provision. Weitere Informationen erhältst Du vom Anbieter.
Lage
- das Gewerbegrundstück befindet in der Stadt Bitterfeld-Wolfen im des "Chemieparks Bitterfeld-Wolfen" im Areal E
- gut sichtbarer Ecklage
- optimale Verkehrsanbindung an überregionalen Straßenverkehr über die Bundesstraßen B 184, B 183 und B 100 mit Anschluss an die Autobahn A9
- Bahnhof Bitterfeld ist etwa 2,4 km...
Das Grundstück
Kategorie
Gewerbe-Grundstück
Details
Objektbeschreibung
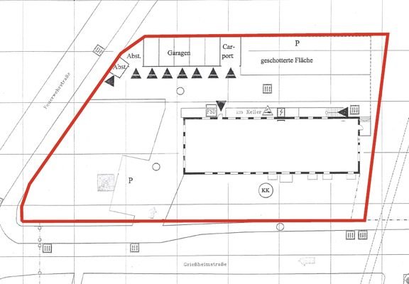
Bebautes UND bebaubares Gewerbegrundstück (GI) ca. 2.285 m² - im Chemiepark Bitterfeld-Wolfen
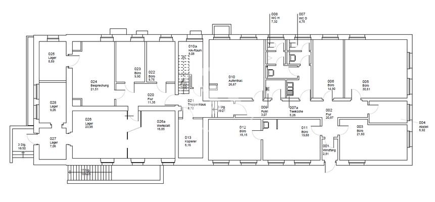
Zum Verkauf steht eine bebaute Gewerbeliegenschaft mit einer Grundstücksgröße von ca. 2.285 m². Auf Gelände befindet sich ein Büro- und Technikgebäude (Nr. 1) und ein Garagenkomplex (Nr. 2) mit 5 Garagen sowie Carport und Schuppen...
Weitere Informationen
Sonstiges
Es handelt sich um ein provisionspflichtiges Angebot für den Käufer. Es sind 3 % Käufer-Provision zzgl. 19 % USt. vom beurkundeten Kaufpreis zu zahlen, verdient und fällig mit notarieller Beurkundung des Kaufvertrages.
Der angegebene Kaufpreis versteht sich zzgl. Nebenkosten (Notar, Grunderwerbsteuer) und...
Dokumente
Anbieter der Immobilie
ISS Communication Services GmbH
Theodorstraße 178, 40472 Düsseldorf
Online-ID: 2h98452
Referenznummer: 200039-1-g
Finde Angebote wie dieses
Hier geht es zu unserem Impressum, den Allgemeinen Geschäftsbedingungen, den Hinweisen zum Datenschutz und nutzungsbasierter Online-Werbung.