

BKM ImmobilienService GmbH
080 ···
Nr. anzeigenPreise & Kosten
Provision für Käufer
3,57 % inkl. MwSt.
Die angegebene Courtage ist vom Käufer zu zahlen. Sie berechnet sich aus dem beurkundeten Kaufpreis (inkl. Nebenabreden). Weitere Informationen siehe Provisionshinweis.
Lage
Die Etagenwohnung befindet sich in der ruhigen Kleinstadt Wehingen, welche im Norden des Landkreises Tuttlingen in Baden-Württemberg liegt.
Die Wohnung ist nordwestlich, und somit nur 800 m vom Stadtzentrum entfernt, und ist durch eine Bushaltestelle in nur 200 m fußläufig gut an den öffentlichen Nahverkehr...
Die Wohnung
Wohnungslage
7. Geschoss
Wohnanlage
Energie & Heizung
Warum sehe ich diese Anzeige? – Du siehst diese Anzeige basierend auf Ihrer Navigation auf unserer Website und den Suchkriterien, die du verwendet hast.
Energieausweistyp
Verbrauchsausweis
Gebäudetyp
Wohngebäude
Baujahr laut Energieausweis
1971
Wesentliche Energieträger
Gas
Gültigkeit
26.07.2017 bis 26.07.2027
Effizienzklasse
D
Endenergieverbrauch
117,00 kWh/(m²·a) - Warmwasser enthalten
Weitere Energiedaten
Energieträger
Gas
Heizungsart
Zentralheizung
Details
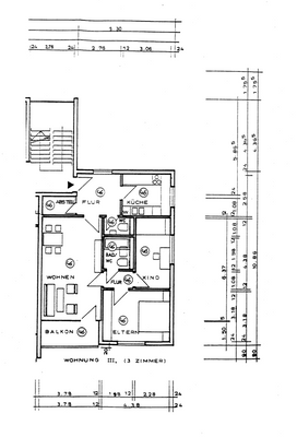
Objektbeschreibung
Erleben Sie das Wohnen in einer charmanten 3-Zimmer-Wohnung, die sich in einem gepflegten Mehrfamilienhaus befindet. Mit einer Wohnfläche von ca. 74 m² präsentiert sich diese Immobilie als idealer Wohnraum für Singles, Paare oder kleine Familien.
Die Wohnung umfasst drei Zimmer und bietet Ihnen ausreichend Platz zur...
Weitere Informationen
Provisionshinweis
3,57 % inkl. MwSt.
Die angegebene Courtage ist vom Käufer zu zahlen. Sie berechnet sich aus dem beurkundeten Kaufpreis (inkl. Nebenabreden). Es besteht ein Maklervertrag mit dem Verkäufer, der in gleicher Höhe provisionspflichtig ist. Die Courtage ist verdient mit Abschluss des notariellen...
Anbieter der Immobilie
Online-ID: 2h9jm5x
Referenznummer: 15098
Finde Angebote wie dieses
Hier geht es zu unserem Impressum, den Allgemeinen Geschäftsbedingungen, den Hinweisen zum Datenschutz und nutzungsbasierter Online-Werbung.