
Ottens Immobilien-Wohnbau GmbH
Herr Friedrich Ottens
082 ···
Nr. anzeigenPreise & Kosten
Provision für Käufer
3,57 inkl. MwSt.
Lage
Das Grundstück befindet sich ruhig im Stadtkern von Schwabmünchen Nähe Singold (Fluss). Die Stadt Schwabmünchen liegt ca. 20 km südlich von Augsburg und verfügt über eine gute Infrastruktur. Dank seiner hervorragenden Lage und dem unmittelbaren Anschluss an die B17 verfügt Schwabmünchen über eine ausgezeichnete...
Die Immobilie
Zu diesem Angebot wurden vom Anbieter keine weiteren Daten hinterlegt. Für weitere Informationen bitte den Anbieter kontaktieren.
Nach Informationen fragenDetails
Preisinformation
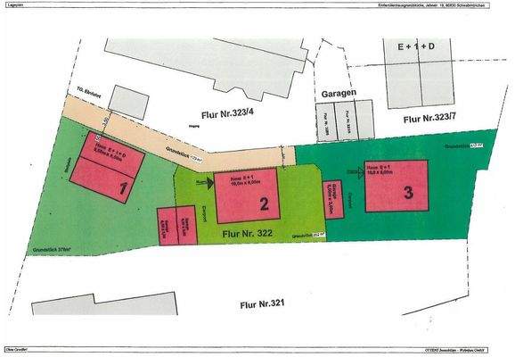
Grundstück 1: 378 m² zzgl. 1/3 aus 129 m² gesamt 421 m²: 315.000,- Euro
Grundstück 2: 262 m² zzgl. 1/3 aus 129 m² gesamt 305 m²: 239.500,- Euro
Grundstück 3: 413 m² zzgl. 1/3 aus 129 m² gesamt 456 m²: 339.500,- Euro
Weitere Informationen
Sonstiges
Ottens Immobilien-Wohnbau GmbH: Seit 40 Jahren ein kompetenter Partner
- Beratung in allen Immobilienfragen
- Erstellen von Wertermittlungsgutachten
- Professionelle Vermittlung Ihrer Immobilie (bei Verkauf und Vermietung)
- Schlüsselfertige Erstellung von hochwertigen Ein- und...
Anbieter der Immobilie

Ottens Immobilien-Wohnbau GmbH
Ludwigstraße 25a, 86316 Friedberg
Online-ID: 2h9vy54
Referenznummer: 922
Finde Angebote wie dieses
Hier geht es zu unserem Impressum, den Allgemeinen Geschäftsbedingungen, den Hinweisen zum Datenschutz und nutzungsbasierter Online-Werbung.