
immobilienbüro albert steiert gmbh
Herrn Albert Steiert
+49 ···
Nr. anzeigenPreise & Kosten
Kaution
3.600,00
Provision für Mieter
3,57 Monatskaltmieten inkl. 19%MwSt.
Warum sehe ich diese Anzeige? – Du siehst diese Anzeige basierend auf Ihrer Navigation auf unserer Website und den Suchkriterien, die du verwendet hast.
Lage
Das Wohn- und Geschäftshaus befindet sich inmitten der Fußgängerzone in der Nähe des Marktplatzes und bietet alle Vorteile des absoluten Zentrums. Die hervorragende Infrastruktur zeichnet sich durch öffentliche Verkehrsmittel, die Nähe zum Hauptbahnhof und einen guten Autobahnanschluss aus. Hier sind Sie bestens für Ihre...
Büro-/Praxisfläche
Bezug
nach Vereinbarung
Energie & Heizung
Warum sehe ich diese Anzeige? – Du siehst diese Anzeige basierend auf Ihrer Navigation auf unserer Website und den Suchkriterien, die du verwendet hast.
Wärme
Energieausweistyp
Verbrauchsausweis
Gebäudetyp
Nicht-Wohngebäude
Baujahr laut Energieausweis
1995
Wesentliche Energieträger
Öl
Gültigkeit
bis 12.04.2026
Endenergieverbrauch (Wärme)
95,00 kWh/(m²·a) - Warmwasser enthalten
Weitere Energiedaten
Energieträger
Öl
Details
Objektbeschreibung
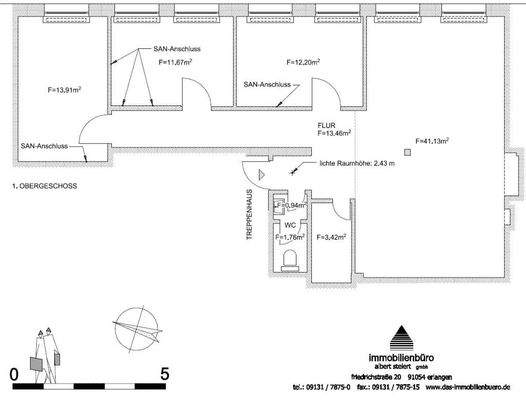
Diese Gewerbefläche befindet sich im 1. Obergeschoss eines Wohn- und Geschäftshauses mit vier Parteien in der Fußgängerzone Erlangens. Das Objekt umfasst knapp 100 qm und verfügt über drei abgeschlossene Räume, einen offenen Empfangsbereich, eine Teeküche sowie ein WC. Die Fläche wuirde vollständig vor ca. 3 Jahren...
Ausstattung
In allen Räumen sollen neue Decken montiert und neue Böden verlegt werden. Die bestehenden Sanitäranlagen werden entfernt und durch neue ersetzt, soweit erforderlich. Die Ausstattung bzw. Aufteilung kann in gewissem Maße noch auf individuelle Bedürfnisse abgestimmt werden.
Weitere Informationen
Ortsbeschreibung
Die zur "besten kleinen Großstadt" ausgezeichnete Universitätsstadt Erlangen mit ca. 111.000 Einwohnern vereint so viele positive Faktoren, wie kaum eine andere Stadt: Geschichte, Kultur, eine zentrale Lage in Deutschland sowie ein hoher Freizeitwert und eine aufstrebende Wirtschaftskraft sind nur einige...
Anbieter der Immobilie
Online-ID: 2hac65j
Referenznummer: G1680017M
Finde Angebote wie dieses
Hier geht es zu unserem Impressum, den Allgemeinen Geschäftsbedingungen, den Hinweisen zum Datenschutz und nutzungsbasierter Online-Werbung.