
Kollitsch Immobilien GmbH
Firma Kollitsch Immobilien Graz
004 ···
Nr. anzeigenPreise & Kosten
Provision für Käufer
Bitte beachte, das Angebot kann bei Vertragsabschluss die Zahlung einer Provision beinhalten. Weitere Informationen erhältst Du vom Anbieter.
Die Wohnung
Bezug
nach Fertigstellung
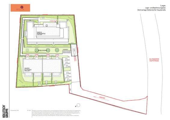
Wohnanlage
Details
Objektbeschreibung
Lebensglück. Frisch gepflückt.
Hier sprießt die Lebensfreude. Leicht erhöht in Waltendorf. Wo die Gänseblümchen blühen und das grüne Graz zum Wohlfühlen einlädt. Genussvolles, urbanes Wohnen. Ganz nah an der Natur. Erholsam und gemütlich. Das ist BELA.
- 12 Eigentumswohnungen
- 4 Reihenhäuser mit...
Weitere Informationen
Stichworte
Fahrradraum, Balkon-Terrassen-Fläche: 25,33 m², Kellerfläche: 2,21 m², Bundesland: Steiermark
Sonstiges/Wohnen: seniorengerechtes Wohnen
Anbieter der Immobilie
Kollitsch Immobilien GmbH
Deutenhofenstraße 3, 9020 Klagenfurt am Wörthersee
Online-ID: 2hacn5j
Referenznummer: 006031_5
Finde Angebote wie dieses
Günstige Immobilienfinanzierung einfach online berechnen
Persönliches Angebot berechnenWarum sehe ich diese Werbung? – Du siehst diese Werbung basierend auf Deiner Navigation auf unserer Website und der von Dir verwendeten Suchkriterien.
Diese Werbung wird bezahlt von durchblicker
Werbung melden
Hier geht es zu unserem Impressum, den Allgemeinen Geschäftsbedingungen, den Hinweisen zum Datenschutz und nutzungsbasierter Online-Werbung.