
Wolf + Fabig Immobilien GbR
Peggy Günther
017 ···
Nr. anzeigenPreise & Kosten
Provision für Käufer
3,57%
Die Wohnung
Derzeitige Nutzung
vermietet
Wohnanlage
Energie & Heizung
Warum sehe ich diese Anzeige? – Du siehst diese Anzeige basierend auf Ihrer Navigation auf unserer Website und den Suchkriterien, die du verwendet hast.
Weitere Energiedaten
Energieträger
Gas
Heizungsart
Zentralheizung
Details
Ausstattung
Für Kapitalanleger - vermietete Eigentumswohnung in begehrter Lage im Südviertel von Ilmenau!
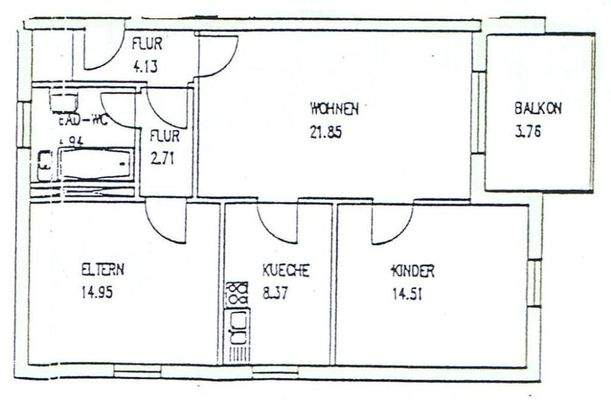
Im 1.OG eines Mehrfamilienhauses besitzt diese angebotene ETW 2 Schlafzimmer,1 Wohnzimmer,1 Wohnküche ,1 Duschbad mit Fenster und einen großzügigen Balkon mit Blick auf den alten Kurpark. Zur Wohnung gehört ein Kellerraum und ein...
Preisinformation
Ist-Mieteinnahmen pro Jahr: 5.640,00 EUR
Weitere Informationen
Stichworte
Tiefgarage vorhanden, West-Balkon/Terrasse, Fahrradraum, Anzahl der Schlafzimmer: 2, Anzahl der Badezimmer: 1, Anzahl Balkone und Terrassen: 1, 3 Etagen, Stadtrandlage, Distanz zum Bus: 0.5, Distanz zum Hauptbahnhof: 0.8, Distanz vom Zentrum: 0.5, Distanz zu Sportanlagen: 0.5
Anbieter der Immobilie

Wolf + Fabig Immobilien GbR
Topfmarkt 13, 98693 Ilmenau
Online-ID: 2hb535g
Referenznummer: K419
Finde Angebote wie dieses
Hier geht es zu unserem Impressum, den Allgemeinen Geschäftsbedingungen, den Hinweisen zum Datenschutz und nutzungsbasierter Online-Werbung.