

DR Immobilien & Partners GmbH
Herr Dennis Richarz
084 ···
Nr. anzeigenPreise & Kosten
Kaution
11.940,00
Provision für Mieter
Bitte beachte, das Angebot kann bei Vertragsabschluss die Zahlung einer Provision beinhalten. Weitere Informationen erhältst Du vom Anbieter.
Warum sehe ich diese Anzeige? – Du siehst diese Anzeige basierend auf Ihrer Navigation auf unserer Website und den Suchkriterien, die du verwendet hast.
Lage
Die Gewerbeimmobilie befindet sich prominent an der Augsburger Straße in Neuburg zwischen Stadtkern und Gewerbegebiet. Das Gebäude besticht durch moderne und repräsentative Architektur. Die Adresse lässt sich besonders gut mit dem Auto anfahren. Auf dem Grundstück befinden sich ausreichend Kurzzeitparkplätze für Kunden...
Büro-/Praxisfläche
Kategorie
Bürofläche
Baujahr
2022
Bezug
ab sofort
Details
Objektbeschreibung
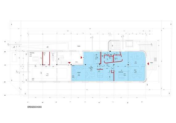
Die angebotene Fläche befindet sich im Erdgeschoss eines modernen Komplexes aus dem Baujahr 2022. Im Objekt befinden sich ein Notariat, eine Steuerkanzlei sowie ein Immobilienbüro.
Die Einheit verfügt über eine Gesamtfläche von ca. 265,40 m² und besticht durch ihre hochwertige Ausstattung. Der Haupteingang an der...
Ausstattung
+ Fußbodenheizung
+ Lüftungsanlage
+ große Fenster mit Raffstores
+ moderne Ausstattung
+ verschiedene Möbel können nach Absprache abgelöst werden
+ Feinsteinzeug Fliesen
+ Schließanlage mit Chip
+ Tiefgaragenstellplatz (auch mit E-Ladestation)
+ Hausmeisterservice
+ Netzwerkstecker und ausreichend...
Weitere Informationen
Sonstiges
Die Vermittlung dieser Immobilie erfolgt für den Mieter PROVISIONSFREI und exklusiv durch DR Immobilien & Partners GmbH.
Wir weisen darauf hin, dass die von uns weitergegebenen Objektinformationen, Unterlagen, Pläne etc. vom Vermieter stammen. Eine Haftung für die Richtigkeit oder Vollständigkeit der...
Anbieter der Immobilie
DR Immobilien & Partners GmbH
Milchstraße 9, 85049 Ingolstadt

Online-ID: 2hd835k
Referenznummer: DRI-136425
Finde Angebote wie dieses
Hier geht es zu unserem Impressum, den Allgemeinen Geschäftsbedingungen, den Hinweisen zum Datenschutz und nutzungsbasierter Online-Werbung.