
Ambiente Immobilien e.U.
Frau Brigitte Weisleitner
+43 ···
Nr. anzeigenPreise & Kosten
Provision für Käufer
3,6 inkl. MwSt.
Abschreibung/Anlage
Denkmalschutz-Afa
Lage
Bad Radkersburg, eine Perle im Südosten der Steiermark, vereint auf einzigartige Weise historische Tradition mit modernem Komfort. Die charmante Stadt am Ufer der Mur lockt Besucher mit ihrer malerischen Altstadt, dem heilkräftigen Thermalwasser und einer lebendigen Kulturlandschaft.
Die historische Altstadt von Bad...
Das Haus
Energie & Heizung
Warum sehe ich diese Anzeige? – Du siehst diese Anzeige basierend auf Ihrer Navigation auf unserer Website und den Suchkriterien, die du verwendet hast.
Heizwärmebedarf (HWB)
48,00 kWh/(m²·a)
Gesamtenergieeffizienz (fGEE)
0,96
Weitere Energiedaten
Energieträger
Fernwärme
Heizungsart
Fußbodenheizung
Details
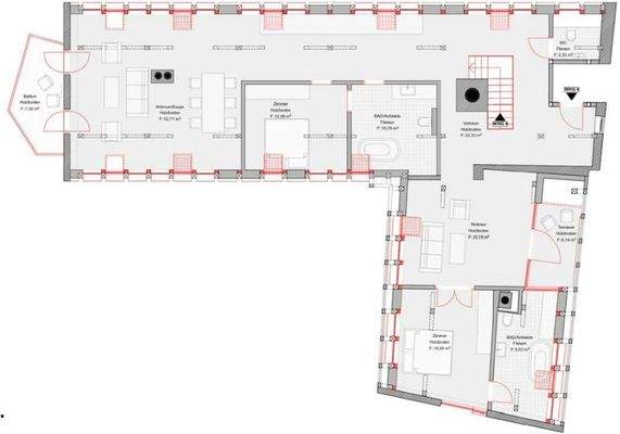
Objektbeschreibung
Dieses topsanierte Bürgerhaus in einer ruhigen Gasse der Altstadt von Bad Radkersburg beeindruckt durch hochwertige Modernisierungen und historische Details. Das Niedrigenergiehaus wurde komplett modernisiert und ist in vier parifizierte Wohneinheiten aufgeteilt, die höchsten Wohnkomfort bieten.
Das Gebäude ist mit einer...
Weitere Informationen
Sonstiges
Weitere Zinshäuser in Bad Radkersburg...
Anbieter der Immobilie
Ambiente Immobilien e.U.
Grünwaldweg 7, 6384 WAIDRING
Online-ID: 2hdab5p
Referenznummer: 168
Finde Angebote wie dieses
Günstige Immobilienfinanzierung einfach online berechnen
Persönliches Angebot berechnenWarum sehe ich diese Werbung? – Du siehst diese Werbung basierend auf Deiner Navigation auf unserer Website und der von Dir verwendeten Suchkriterien.
Diese Werbung wird bezahlt von durchblicker
Werbung melden
Hier geht es zu unserem Impressum, den Allgemeinen Geschäftsbedingungen, den Hinweisen zum Datenschutz und nutzungsbasierter Online-Werbung.