
Scherf Profi Immobilien Service GmbH
Herr Norbert Scherf
065 ···
Nr. anzeigenPreise & Kosten
Provision für Käufer
1,785 % incl. Mwst
Lage
Trier-Kernscheid, "das Dorf in der Stadt Trier", gefragte Wohnlage mit hohem Wohnwert im Grünen zwischen Trier-Olewig und Trier-Irsch. Die Universität erreichen Sie auf kurzen Wegen. Ebenso ist die Innenstadt gut erreichbar.
Gleichermaßen ist eine gute Verkehrsanbindung in alle Richtungen gegeben.
Das Renditeobjekt
Kategorie
Mehrfamilienhaus
Baujahr
2024
Energie & Heizung
Warum sehe ich diese Anzeige? – Du siehst diese Anzeige basierend auf Ihrer Navigation auf unserer Website und den Suchkriterien, die du verwendet hast.
Wärme
Energieausweistyp
Bedarfsausweis
Gebäudetyp
Nicht-Wohngebäude
Baujahr laut Energieausweis
2020
Wesentliche Energieträger
Luft/Wasser-Wärmepumpe
Gültigkeit
31.08.2020 bis 30.08.2030
Endenergiebedarf (Wärme)
17,70 kWh/(m²·a)
Weitere Energiedaten
Haustyp
KfW 55
Heizungsart
Fußbodenheizung, Luft-/Wasser-Wärmepumpe
Details
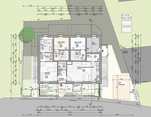
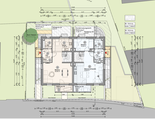
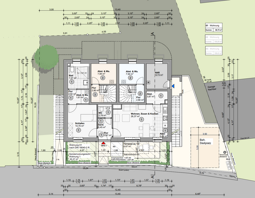
Objektbeschreibung
Attraktives vermietetes Mehrfamilienhaus mit separaten Zugängen und moderner Technik in schöner Lage von Trier-Kernscheid
Moderne Wohnungen in gefragter Lage von ca. 69 m² bis ca. 106 m² Wohnfläche in einem Mehrfamilienhaus mit nur 3 Wohneinheiten und separaten Zugängen. .
Die Baubeschreibung sieht die Beheizung mit...
Ausstattung
Attraktives vermietetes Mehrfamilienhaus mit separaten Zugängen und moderner Technik in schöner Lage von Trier-Kernscheid
Moderne Wohnungen in gefragter Lage von ca. 69 m² bis ca. 106 m² Wohnfläche in einem Mehrfamilienhaus mit nur 3 Wohneinheiten und separaten Zugängen. .
Die Baubeschreibung sieht die Beheizung mit...
Preisinformation
3 Garagenstellplätze
Soll-Mieteinnahmen pro Jahr: 42.420,00 EUR
Ist-Mieteinnahmen pro Jahr: 42.420,00 EUR
Weitere Informationen
Sonstiges
Vereinbaren Sie einen Beratungs bzw. Besichtigungstermin !
Der Energieausweis liegt vor.
Dieser wird dem Interessenten vor dem Besichtigungstermin mit dem Exposé zur Verfügung gestellt.
In Zusammenarbeit mit einem Finanzierungsvermittler sind wir Ihnen gerne bei der Gestaltung Ihrer...
Anbieter der Immobilie
Online-ID: 2hdel5e
Referenznummer: MFHKEDR104
Finde Angebote wie dieses
Hier geht es zu unserem Impressum, den Allgemeinen Geschäftsbedingungen, den Hinweisen zum Datenschutz und nutzungsbasierter Online-Werbung.