

Nudelmann & Friends Immobilien GmbH
Frau Andrea Riley
+49 ···
Nr. anzeigenPreise & Kosten
Kaution
Drei Bruttowarmmieten
Provision für Mieter
3,57 Nettokaltmieten inklusive 19% Mwst
Warum sehe ich diese Anzeige? – Du siehst diese Anzeige basierend auf Ihrer Navigation auf unserer Website und den Suchkriterien, die du verwendet hast.
Lage
1A-Lage
Die Neue Bahnhofstraße in Berlin-Friedrichshain befindet sich im Zentrum eines lebendigen Kiezes mit einer reichen Geschichte und einer blühenden Kulturszene.
Die Gegend gehörte einst zur DDR und hat nach der Wiedervereinigung eine rasante Entwicklung erlebt.
In der Nähe liegt das ehemalige...
Die Ladenfläche
Kategorie
Kiosk
Energie & Heizung
Warum sehe ich diese Anzeige? – Du siehst diese Anzeige basierend auf Ihrer Navigation auf unserer Website und den Suchkriterien, die du verwendet hast.
Weitere Energiedaten
Heizungsart
Zentralheizung
Details
Objektbeschreibung
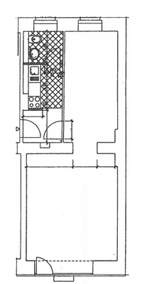
Frei werdende Ladenfläche mit 49,57 m² im Herzen von Berlin-Friedrichshain.
Die Fläche bietet ein großes Schaufenster, das viel Tageslicht hereinlässt und einen freundlichen, hellen Look erzeugt. Zurzeit wird sie als Späti genutzt, aber die Möglichkeiten für einen neuen Laden sind vielfältig. Die ausgezeichnete Lage...
Ausstattung
- Helle Ladenfläche
- Grosse Schaufensterfront
- Super Grundriss
- sehr gute Lage
- WC
- Aussenbereich
- Lager
- mit Ablöse
Weitere Informationen
Stichworte
Serviceleistungen: Hausmeister
Sonstiges: frei werdend
Anbieter der Immobilie
Nudelmann & Friends Immobilien GmbH
Kurfürstendamm 133, 10711 Berlin

Online-ID: 2hftd5u
Referenznummer: 10245NB8-Späti
Finde Angebote wie dieses
Hier geht es zu unserem Impressum, den Allgemeinen Geschäftsbedingungen, den Hinweisen zum Datenschutz und nutzungsbasierter Online-Werbung.