
Antaris Immobilien GmbH
Frau Sandy Thorwirth
+49 ···
Nr. anzeigenPreise & Kosten
Provision für Mieter
provisionsfrei
Warum sehe ich diese Anzeige? – Du siehst diese Anzeige basierend auf Ihrer Navigation auf unserer Website und den Suchkriterien, die du verwendet hast.
Lage
Waltersleben ist ein Ortsteil von Erfurt. Unmittelbar an Waltersleben führen die BAB 4 sowie die A 4 und A 71 vorbei. Der Büropark Waltersleben bietet durch den unmittelbaren Autobahnanschluss eine gute Verbindung nach Erfurt, Arnstadt, Weimar, Gotha, Eisenach, Jena und Leipzig. Mit den öffentlichen Verkehrsmitteln erreicht...
Büro-/Praxisfläche
Kategorie
Bürofläche
Baujahr
1994
Energie & Heizung
Warum sehe ich diese Anzeige? – Du siehst diese Anzeige basierend auf Ihrer Navigation auf unserer Website und den Suchkriterien, die du verwendet hast.
Wärme
Strom
Energieausweistyp
Verbrauchsausweis
Gebäudetyp
Nicht-Wohngebäude
Baujahr laut Energieausweis
1994
Wesentliche Energieträger
Erdgas schwer
Gültigkeit
13.10.2022 bis 13.10.2032
Endenergieverbrauch (Wärme)
82,60 kWh/(m²·a)
Endenergieverbrauch (Strom)
20,20 kWh/(m²·a)
Details
Objektbeschreibung
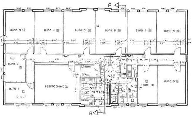
Der Büropark besteht aus einem Gebäudekomplex mit 12 Häusern. Zur Vermietung stehen verschiedene Büro- und Lagerflächen ab ca. 25,00 m² bis 1.200,00 m². Die Häuser können komplett, etagenweise oder auch in einzelnen Teilbereichen angemietet werden. Die gepflegten Flächen sind derzeit überwiegend mit strapazierfähigen...
Ausstattung
Der angegebene Preis ist der Mindest-Mietpreis. Abhängig vom Ausstattungsgrad und der Größe, sowie Laufzeit bekommt jeder Interessent ein individuelles Mietangebot.
Der angegebene Preis ist der Mindest-Mietpreis. Abhängig vom Ausstattungsgrad und der Größe, sowie Laufzeit bekommt jeder Interessent ein individuelles...
Weitere Informationen
Sonstiges
Widerrufsrecht
Sie können Ihre Vertragserklärung innerhalb von 14 Tagen ohne Angaben von Gründen in Textform (z.B. Brief, E-Mail) widerrufen. Die Frist beginnt nach Erhalt dieser Belehrung in Textform, jedoch nicht vor Vertragsabschluss und auch nicht vor Erfüllung unserer Informationspflichten gem. Art. 246 §...
Anbieter der Immobilie
Online-ID: 2hg7p5x
Referenznummer: P251017/G1/Eh6
Finde Angebote wie dieses
Hier geht es zu unserem Impressum, den Allgemeinen Geschäftsbedingungen, den Hinweisen zum Datenschutz und nutzungsbasierter Online-Werbung.