Kontaktiere den Anbieter schriftlich, es ist keine Telefonnummer hinterlegt.

Inklusives Mehrgenerationenwohnen - Modellprojekt Caring Community - 45 Wohnungen für eine Hausgemeinschaft

auf Anfrage
Kaltmiete
51 m²
Wohnfläche ca.
1
Zimmer

Der Anbieter dieses Objekts hat gegenüber der AVIV Germany GmbH als Betreiber dieses Online-Marktplatzes erklärt, nicht als Unternehmer im Sinne des § 1 KSchG zu handeln. Die im Verbraucherschutzrecht der Union verankerten Verbraucherrechte (insbesondere Informationspflichten und Rücktritts- bzw. Widerrufsrechte) finden auf den Vertrag zwischen dem Anbieter des Objekts und Ihnen (dem Interessenten) keine Anwendung.

Gewerblicher Anbieter

Der Anbieter dieses Objekts hat gegenüber der AVIV Germany GmbH als Betreiber dieses Online-Marktplatzes erklärt, als Unternehmer im Sinne des § 1 KSchG zu handeln.

AdresseHappelstraße 17
74074 Heilbronn 
Auf Karte ansehen

Preise & Kosten

Kaltmiete auf Anfrage Nebenkosten € 150

Kaution

3 Monatsmieten

Lage

Die Immobilie liegt in belebter Gegend im Heilbronn Süden.
In unmittelbarer Umgebung der Immobilie verkehren einige Buslinien.
Das Stadtzentrum ist in wenigen Minuten zu Fuß gut erreichbar.
Zu Fuß erreichen Sie
- einige Restaurants
- Bäckereien
- ein großes Ärztehaus,
- Cafés
-...

Mehr anzeigen

Die Wohnung

Bezug

03-2026

  • Bad mit Dusche
  • Terrasse
  • Einbauküche
  • barrierefrei, rollstuhlgerecht
  • Böden: Teppichboden
  • Fenster: Kunststofffenster
  • Ausstattung: neuwertig
  • kontrollierte Be- und Entlüftungsanlage
  • Weitere Räume: Abstellraum, Wasch-Trockenraum
  • Anschlüsse: DSL-Anschluss

Wohnanlage

  • Baujahr: 2025
  • Zustand: Neubau
  • Personenaufzug
  • Serviceleistungen: betreutes Wohnen, Reinigungsservice

Energie & Heizung

Energieausweistyp

Verbrauchsausweis

Gebäudetyp

Wohngebäude

Weitere Energiedaten

Energieträger

Pellets

Haustyp

KfW 55

Heizungsart

Zentralheizung

Details

Objektbeschreibung

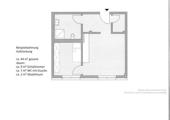
Dieses Inserat beschreibt lediglich eine Musterwohnung.

Insgesamt handelt es sich um ein Modellprojekt des Paritätischen in Heilbronn - kooperatives Mehrgenerationenwohnen mit dem Motto: miteinander - füreinander wohnen.

Es werden insgesamt 45 Wohnungen für bis zu 58 Bewohner in unterschiedlichen Wohnungsgrößen...

Mehr anzeigen

Weitere Informationen

Anzahl freier Wohnungen
Folgende Wohnungen können wir derzeit noch anbieten:
65 qm / 2 Zimmer / 955 € kalt
56 qm / 1 Zimmer / 805 € kalt
51 qm / 1 Zimmer / 744 € kalt
49 qm / 1 Zimmer / 720 € kalt
47 qm / 1 Zimmer / 680 € kalt
42 qm / 2 Zimmer / 610 € kalt
25 qm / 1 Zimmer / 330 € kalt

Für alle...

Mehr anzeigen

Dokumente

file_pdfVielen Dank für Ihre Anfrage - wie geht es weiter.angle_rightfile_pdfHaus der Parität Beispielwohnungen.pdfangle_rightfile_pdfBewerberbogen_betreutes Servicewohnen.pdfangle_right

Anbieter der Immobilie

user

Gewerblicher Anbieter

Der Anbieter möchte nur über das Kontaktformular kontaktiert werden.

Online-ID: 2hhga5p

Finde Angebote wie dieses

imageimageimage

Hier geht es zu unserem Impressum, den Allgemeinen Geschäftsbedingungen, den Hinweisen zum Datenschutz und nutzungsbasierter Online-Werbung.