
Wellmann Immobilien GmbH & Co. KG
Herr Emanuel Müller
042 ···
Nr. anzeigenPreise & Kosten
Provision für Käufer
5,95% inkl. 19% MwSt. (Käuferprovision) inkl. MwSt.
Lage
Das Wohn- und Geschäftshaus befindet sich im südlichen Teil der Kornstraße in verkehrsgünstiger Lage kurz vor der Auffahrt zum Autobahnzubringer Arsten sowie dem BSAG Bus- und Straßenbahnknotenpunkt Huckelriede. Auch der Werdersee mit seinen vielfältigen Freizeit- und Erholungsmöglichkeiten liegt nebenan, sodass eine gute...
Das Renditeobjekt
Kategorie
Wohn- und Geschäftshaus
Baujahr
1957
Bezug
nach Vereinbarung
Frei ab
vermietet
Energie & Heizung
Warum sehe ich diese Anzeige? – Du siehst diese Anzeige basierend auf Ihrer Navigation auf unserer Website und den Suchkriterien, die du verwendet hast.
Energieausweistyp
Bedarfsausweis
Gebäudetyp
Wohngebäude
Baujahr laut Energieausweis
1957
Wesentliche Energieträger
OEL
Gültigkeit
bis 08.07.2030
Effizienzklasse
H
Endenergiebedarf
252,40 kWh/(m²·a)
Weitere Energiedaten
Energieträger
Öl
Heizungsart
Zentralheizung
Details
Objektbeschreibung
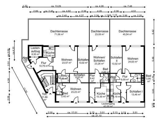
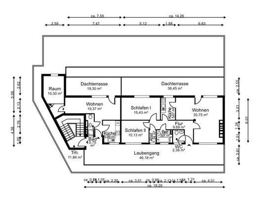
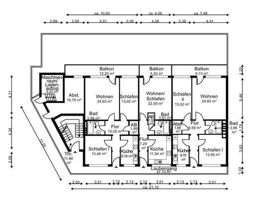
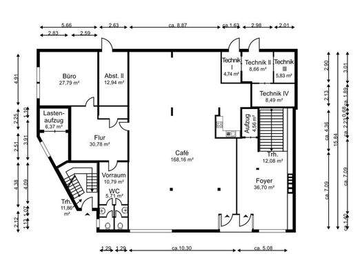
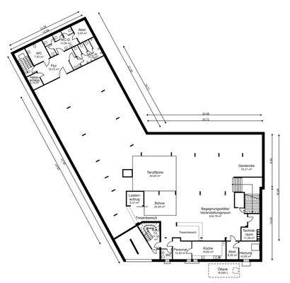
Das Wohn- und Geschäftshaus beherbergt auf 1.587,30m² Wohn- und Nutzfläche eine Gewerbeeinheit (Bar/Club/Diskothek) im Untergeschoss, eine zweite (Café) im Erdgeschoss und insgesamt neun 1-3-Zimmer-Wohnungen in den drei Obergeschossen (Vollgeschosse).
Das im Jahr 1957 fertiggestellte Haus wurde und wird regelmäßig...
Ausstattung
+ Baujahr Gebäude: 1957
+ Öl-Zentralheizung: 1976
+ 1.045,09m² gewerbliche Nutzfläche in Unter- und Erdgeschoss
+ Gewerbeeinheit 1 (Bar/Club/Diskothek) im Erd- und Untergeschoss: 806,33m²
+ Gewerbeeinheit 2 (Café) im Erdgeschoss: 238,75m²
+ 542,21m² Wohnfläche mit 9 Wohneinheiten auf drei...
Preisinformation
10 Stellplätze
3 Garagenstellplätze
Ist-Mieteinnahmen pro Jahr: 106.740,00 EUR
Weitere Informationen
Sonstiges
Die Florian Wellmann Immobilien GmbH hat sich auf den Verkauf und die Vermietung von hochwertigen Immobilien spezialisiert. Seit Jahren sind wir erfolgreich am Immobilienmarkt tätig. Wir verkaufen und vermieten exklusive und außergewöhnliche Objekte in den bevorzugten Lagen von Bremen & Umgebung.
Wir sind...
Anbieter der Immobilie
Wellmann Immobilien GmbH & Co. KG
Schwachhauser Heerstr. 218a, 28213 Bremen
Online-ID: 2hhgp5m
Referenznummer: IY940
Finde Angebote wie dieses
Hier geht es zu unserem Impressum, den Allgemeinen Geschäftsbedingungen, den Hinweisen zum Datenschutz und nutzungsbasierter Online-Werbung.