

Hirzle Bauunternehmen GmbH
Herr/Frau Verena Hirzle
077 ···
Nr. anzeigenPreise & Kosten
Provision für Käufer
provisionsfrei
Lage
Die beiden Wohnhäuser liegen in einer ruhigen, grünen Wohngegend von Reckingen, die sich durch ihre naturnahe Atmosphäre auszeichnet. Hier genießen Sie eine entspannte Lebensqualität, umgeben von malerischer Landschaft, ohne dabei auf die Vorteile einer guten Verkehrsanbindung zu verzichten. Verkehrstechnisch sind Sie hier...
Das Haus
Kategorie
Reihenendhaus
Geschosse
1 Geschoss
Baujahr
1938/2024
Bezug
07/25
Energie & Heizung
Warum sehe ich diese Anzeige? – Du siehst diese Anzeige basierend auf Ihrer Navigation auf unserer Website und den Suchkriterien, die du verwendet hast.
Energieausweistyp
Bedarfsausweis
Gebäudetyp
Wohngebäude
Baujahr laut Energieausweis
1938
Wesentliche Energieträger
Strom
Gültigkeit
26.07.2022 bis 26.07.2032
Effizienzklasse
A+
Endenergiebedarf
16,19 kWh/(m²·a)
Weitere Energiedaten
Haustyp
KfW 70
Energieträger
Elektro
Heizungsart
Fußbodenheizung, Luft-/Wasser-Wärmepumpe
Details
Objektbeschreibung
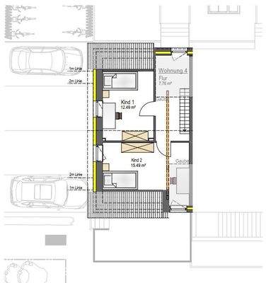
Diese großzügige 5-Zimmer-Wohnung bietet viel Raum und einen schönen Gartenbereich. Die Terrasse auf der Süd-Seite lädt zum Entspannen und Genießen ein. Über das Erdgeschoss erstreckt sich eine Küche mit Essbereich, Gäste-WC und Wohnzimmer mit Zugang zur Terrasse.
Im Obergeschoss befinden sich das Schlafzimmer, ein Büro...
Weitere Informationen
Reckingen
Reckingen, ein charmantes Dorf in der Gemeinde Küssaberg mit rund 5.500 Einwohnern, besticht durch seine Lage am malerischen Hochrhein, direkt an der Grenze zur Schweiz. Hoch über der Gemeinde thront die historische
Küssaburg, eine der beeindruckendsten Burgruinen der Region, die nicht nur ein Wahrzeichen...
Dokumente
Anbieter der Immobilie
Hirzle Bauunternehmen GmbH
Zum Birkle 14, 79777 Birkendorf

Online-ID: 2hhly53
Referenznummer: W4, Haus 6
Finde Angebote wie dieses
Hier geht es zu unserem Impressum, den Allgemeinen Geschäftsbedingungen, den Hinweisen zum Datenschutz und nutzungsbasierter Online-Werbung.