
Z-Immobilien GbR
Frau Mike-Lu Volquardsen
004 ···
Nr. anzeigenPreise & Kosten
Provision für Käufer
3,57% inkl. gesetzl. MwSt.
verdient und fällig mit Beurkundung des notariellen Kaufvertrages.
Lage
Diese Immobilie befindet sich im Stadtzentrum von Tönning. Die maritime Hafenstadt Tönning liegt direkt an der Eidermündung und ist ein beliebter Bade- und Luftkurort. Das Zentrum bildet der Marktplatz und der Schlossgarten. Die umfangreiche Infrastruktur bietet unterschiedliche Einkaufsmöglichkeiten für den täglichen Bedarf...
Büro-/Praxisfläche
Kategorie
Praxis
Baujahr
1830
Bezug
nach Vereinbarung
Energie & Heizung
Warum sehe ich diese Anzeige? – Du siehst diese Anzeige basierend auf Ihrer Navigation auf unserer Website und den Suchkriterien, die du verwendet hast.
Weitere Energiedaten
Energieträger
Öl
Heizungsart
Zentralheizung
Details
Objektbeschreibung
Darf es ein offener Wohnbereich sein oder vielleicht sogar ein Loft?
Im Zentrum Tönnings nahe dem Marktplatz steht das ursprüngliche Wohn- und Geschäftshaus, welches zurzeit als Arztpraxis genutzt wird, zum Verkauf. Das Objekt ist bequem mit dem Auto, zu Fuß oder mit der Bahn zu erreichen und liegt optimal, um einen...
Weitere Informationen
Stichworte
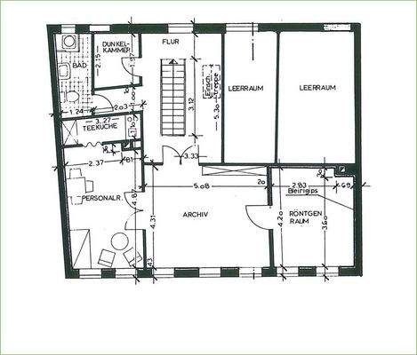
Nutzfläche: 22,00 m², Grundstücksfläche: 257,00 m², Anzahl der Badezimmer: 1, Anzahl der separaten WCs: 1
Anbieter der Immobilie
Z-Immobilien GbR
Tönninger Str. 45, 25836 Garding
Online-ID: 2hjfr5r
Referenznummer: 504
Finde Angebote wie dieses
Hier geht es zu unserem Impressum, den Allgemeinen Geschäftsbedingungen, den Hinweisen zum Datenschutz und nutzungsbasierter Online-Werbung.