

BS Immobilien Kontor Büürma GmbH
Herr Dennis Büürma
049 ···
Nr. anzeigenPreise & Kosten
Provision für Käufer
Die Maklerprovision beträgt für den Käufer 3,57% vom Kaufpreis inkl. ges. MwSt..
Lage
26759 Hinte (Ruhige Wohnlage, gute ÖPNV, Einkaufsmöglichkeiten, Ärzte, Bäcker, Lidl und Banken in der Nähe, Stadt Leer nur wenige PKW-Min. entfernt, gute Verkehrsanbindung zur A-31)
Die Wohnung
Bezug
nach Fertigstellung
Wohnanlage
Energie & Heizung
Warum sehe ich diese Anzeige? – Du siehst diese Anzeige basierend auf Ihrer Navigation auf unserer Website und den Suchkriterien, die du verwendet hast.
Energieausweistyp
Bedarfsausweis
Gebäudetyp
Wohngebäude
Baujahr laut Energieausweis
2025
Wesentliche Energieträger
LUFTWP
Gültigkeit
bis 17.10.2032
Effizienzklasse
A
Endenergiebedarf
38,50 kWh/(m²·a)
Weitere Energiedaten
Heizungsart
Fußbodenheizung, Luft-/Wasser-Wärmepumpe
Details
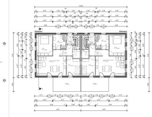
Objektbeschreibung
Diese Neubau Erdgeschosswohnung wird schlüsselfertig in einer zentralen, ruhigen Wohnlage von Hinte erstellt. Das Mehrfamilienhaus besteht insgesamt aus vier Wohnungen und liegt in einer ruhigen Wohnlage von Hinte. Die Stadt Emden erreichen Sie in wenigen PKW-Min.. Die gute Ausstattung dieser Wohnung erstreckt sich über...
Ausstattung
Besonderheiten/Ausstattungsmerkmale:
-Kundenwünsche zur Ausstattung/Aufteilung können berücksichtigt werden
-Sep. Versorgungsanschlüsse für jede Wohneinheit
-Verwendung hochwertiger Baumaterialien
-Fußbodenheizung, Dreifachverglaste Kunststofffenster, PKW- Stellplatz
-Luft-Wasser-Wärmepumpe
-Einbauküche...
Weitere Informationen
Sonstiges
Grundstück: Gem. Eigentum (Terrasse, PKW-Einstellplatz, kleine Gartenanlage)
Gebäude: EG: Flur/Diele, HWR, Kinderzimmer (mit Zugang zur Terrasse), offener Wohn-/ Ess-/Kochbereich (mit Zugang zur Terrasse), Duschbad, Elternschlafzimmer
Gesamt: Wohnfläche 78,51 qm; Wohnung Nr...
Anbieter der Immobilie
BS Immobilien Kontor Büürma GmbH
Faldernstraße 29, 26725 Emden

Online-ID: 2hjkp57
Referenznummer: E19978000
Finde Angebote wie dieses
Hier geht es zu unserem Impressum, den Allgemeinen Geschäftsbedingungen, den Hinweisen zum Datenschutz und nutzungsbasierter Online-Werbung.