
Ambiente Immobilien e.U.
Frau Brigitte Weisleitner
+43 ···
Nr. anzeigenPreise & Kosten
Provision für Käufer
3,6% inkl. MwSt.
Abschreibung/Anlage
Denkmalschutz-Afa
Lage
Willkommen zu einer einzigartigen Gelegenheit in Bad Radkersburg, einer idyllischen Stadt im südöstlichen Österreich, bekannt für ihr angenehmes Klima und entschleunigtes Lebensgefühl. Hier, nahe der slowenischen Grenze und den sanften Hügeln der südsteirischen Weinstraße, können Sie ein liebevolles Zuhause schaffen und das...
Die Wohnung
Wohnanlage
Energie & Heizung
Warum sehe ich diese Anzeige? – Du siehst diese Anzeige basierend auf Ihrer Navigation auf unserer Website und den Suchkriterien, die du verwendet hast.
Heizwärmebedarf (HWB)
110,00 kWh/(m²·a)
Weitere Energiedaten
Energieträger
Fernwärme
Details
Objektbeschreibung
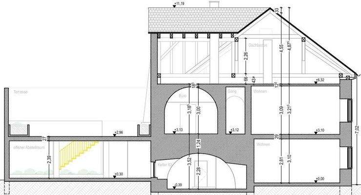
Ein Volltreffer für ein individuelles Wohnkonzept über den Dächern von Bad Radkersburg! Die Immobilie befindet sich im 2. Obergeschoss und ist nur 300 Meter vom Hauptplatz entfernt. Das komplette Dachgeschoss für Sie alleine umfasst eine Wohnfläche von ca. 191 m² mit einem ausbaufähigen Balkon von 11 m² und 4 Schlupfgauben...
Weitere Informationen
Sonstiges
Malerische Weinberge, Idyllische Landschaften, Sonniges Klima, Günstige Immobilienpreise, Attraktive Investitionsmöglichkeiten, Ruhige Wohngegenden, Naturnähe und Erholung, Tradition und Kultur, Herzliche Gastfreundschaft, Vielfältige Freizeitmöglichkeiten, Kulinarische Genüsse, Verkehrsgünstige Lage, Hohe...
Anbieter der Immobilie
Ambiente Immobilien e.U.
Grünwaldweg 7, 6384 WAIDRING
Online-ID: 2hjpz53
Referenznummer: 120
Finde Angebote wie dieses
Günstige Immobilienfinanzierung einfach online berechnen
Persönliches Angebot berechnenWarum sehe ich diese Werbung? – Du siehst diese Werbung basierend auf Deiner Navigation auf unserer Website und der von Dir verwendeten Suchkriterien.
Diese Werbung wird bezahlt von durchblicker
Werbung melden
Hier geht es zu unserem Impressum, den Allgemeinen Geschäftsbedingungen, den Hinweisen zum Datenschutz und nutzungsbasierter Online-Werbung.