

Frank Immobilien
Herr/Frau Martin Frank
075 ···
Nr. anzeigenPreise & Kosten
Provision für Käufer
3,57 %
In Summe wird eine Courtage inkl. MwSt. von 3,57 % fällig, sofern ein notarieller Kaufvertrag zustande kommt. Wir haben einen provisionspflichtigen Maklervertrag mit dem Verkäufer in gleicher Höhe abgeschlossen.
Lage
Das Wohnhaus befindet sich in einem sehr ruhigen Wohngebiet in unmittelbarer Nähe zum sog. Buchbühl-Denkmals. In wenigen Gehminuten erreicht man von hier aus das Kieswerk mit den Baggerseen, das Buchbühldenkmal von Ostrach sowie die Läden des täglichen Bedarfs. In Ostrach gibt es zum einen das Reinhold-Frank-Schulzentrum und...
Das Haus
Kategorie
Mehrfamilienhaus
Baujahr
1978
Bezug
nach Vereinbarung
Energie & Heizung
Warum sehe ich diese Anzeige? – Du siehst diese Anzeige basierend auf Ihrer Navigation auf unserer Website und den Suchkriterien, die du verwendet hast.
Energieausweistyp
Bedarfsausweis
Gebäudetyp
Wohngebäude
Wesentliche Energieträger
Öl
Gültigkeit
27.02.2025 bis 26.02.2035
Effizienzklasse
F
Endenergiebedarf
194,40 kWh/(m²·a)
Weitere Energiedaten
Energieträger
Öl
Heizungsart
Zentralheizung
Details
Objektbeschreibung
Ihr neues Zuhause - Einfamilienhaus mit vielseitiger Nutzungsmöglichkeit
Dieses großzügige Einfamilienhaus bietet Ihnen eine Wohnfläche von ca. 170 m² auf einem 631 m² großen Grundstück. Mit 5,5 Zimmern kann es sowohl als klassisches Einfamilienhaus als auch durch eine separate Aufteilung als Zweifamilienhaus genutzt...
Ausstattung
- Wohnfläche: ca. 170 m²
- Grundstück: 631 m²
- Zimmer: 5,5
- Nutzung: Einfamilien- oder Zweifamilienhaus
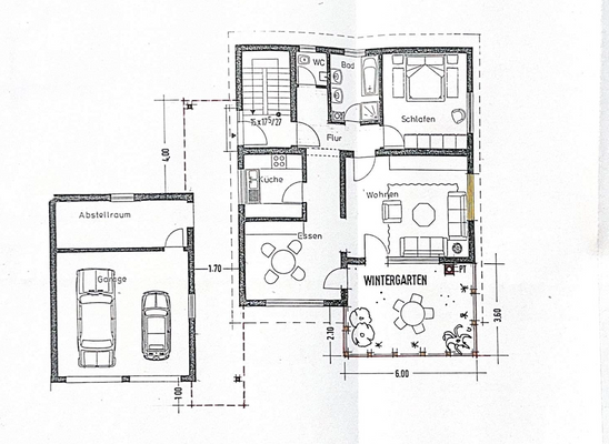
- Erdgeschoss: Schlafzimmer, Gäste-WC, Bad (barrierefreie Dusche), separate Küche, Esszimmer, großes Wohnzimmer mit Zugang zu Wintergarten und Garten
- Obergeschoss: 3 Schlafzimmer, Bad (Dusche/WC)...
Preisinformation
4 Garagenstellplätze
Weitere Informationen
Sonstiges
Alle Objektangaben beruhen auf Mitteilungen der Eigentümer. Eine Haftung für deren Richtigkeit wird nicht übernommen. Bauunterlagen mit Genehmigungen, Pläne und Grundrisse vom Objekt liegen vor. Besichtigungen und Verhandlungen erfolgen ausschließlich über Frank Immobilien. Das Angebot ist freibleibend...
Anbieter der Immobilie
Frank Immobilien
Hauptstraße 28, 88356 Ostrach

Online-ID: 2hk4x5w
Referenznummer: MF1082V
Finde Angebote wie dieses
Hier geht es zu unserem Impressum, den Allgemeinen Geschäftsbedingungen, den Hinweisen zum Datenschutz und nutzungsbasierter Online-Werbung.