
Volksbank Westmünsterland Immobilien GmbH
Frau Sabrina Alex
028 ···
Nr. anzeigenPreise & Kosten
Provision für Käufer
2,5 % inkl. MwSt.
Lage
Diese schöne Neubaumaßnahme liegt im beliebten Ortsteil Borken-Gemen. Der Ortskern von Gemen mit Bäckereien, Cafés und Restaurants befindet sich in fußläufiger Entfernung.
Kindergärten und Schulen liegen in unmittelbarer Umgebung.
Erwähnenswert sind die nahe gelegene "Burg Gemen" und der angrenzende Narturpark...
Das Haus
Kategorie
Einfamilienhaus
Baujahr
2025
Bezug
31.12.2025
Energie & Heizung
Warum sehe ich diese Anzeige? – Du siehst diese Anzeige basierend auf Ihrer Navigation auf unserer Website und den Suchkriterien, die du verwendet hast.
Energieausweistyp
Bedarfsausweis
Gebäudetyp
Wohngebäude
Baujahr laut Energieausweis
2023
Wesentliche Energieträger
Umweltwärme
Gültigkeit
01.05.2023 bis 30.04.2033
Effizienzklasse
A+
Endenergiebedarf
15,20 kWh/(m²·a)
Weitere Energiedaten
Haustyp
Massivhaus
Heizungsart
Luft-/Wasser-Wärmepumpe
Details
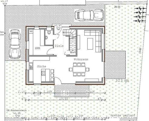
Objektbeschreibung
Neubau in Borken-Gemen: Freistehendes Einfamilienhaus zum FESTPREIS! Bezugsfertig Anfang 2026
Wir freuen uns Ihren Traum vom freistehenden Einfamilienhaus wahr werden zu lassen! Hier bietet sich Ihnen die einmalige Gelegenheit im schönen Ortsteil Borken-Gemen einen energiesparenden Neubau in der schlüsselfertigen...
Ausstattung
Individuelle Ausstattungsmerkmale:
- Eine Südterrasse
- eine Ostterrasse
- Garten
- zzgl. ca. 40 m² Nutzfläche im Spitzboden
- zwei bis drei PkW-Stellplätze
- optional mit Carport
- optional Bad und Schlafzimmer im Erdgeschoss
- schlüsselfertiger Ausbau zum Festpreis
Der Angebotspreis...
Weitere Informationen
Sonstiges
Lassen Sie sich diese einmalige Gelegenheit nicht entgehen und kontaktieren Sie uns, um weitere Details zu besprechen und detaillierte Unterlagen und Informationen zu erhalten.
Sie möchten wissen, welchen Kaufpreis Sie sich leisten können und welche Förderungen es gibt oder wünschen für dieses spezielle...
Dokumente
Anbieter der Immobilie
Volksbank Westmünsterland Immobilien GmbH
Kupferstraße 35, 48653 Coesfeld
Online-ID: 2hksv5q
Referenznummer: 23-1214
Finde Angebote wie dieses
Hier geht es zu unserem Impressum, den Allgemeinen Geschäftsbedingungen, den Hinweisen zum Datenschutz und nutzungsbasierter Online-Werbung.