
Trummer Immobilien GmbH & Co. KG
Herr Roland Trummer
094 ···
Nr. anzeigenPreise & Kosten
zzgl. Nebenkosten
Kaution
Soweit nicht anders erwähnt 3 Monatsmieten
Provision für Mieter
Ortsübliche Provision vom Käufer/Mieter nur im Erfolgsfalle
Warum sehe ich diese Anzeige? – Du siehst diese Anzeige basierend auf Ihrer Navigation auf unserer Website und den Suchkriterien, die du verwendet hast.
Lage
Regensburg - Südost
Büro-/Praxisfläche
Kategorie
Bürogebäude
Bezug
kurzfristig nach Ausbau
Energie & Heizung
Warum sehe ich diese Anzeige? – Du siehst diese Anzeige basierend auf Ihrer Navigation auf unserer Website und den Suchkriterien, die du verwendet hast.
Weitere Energiedaten
Heizungsart
Zentralheizung
Details
Objektbeschreibung
Kurzbeschreibung
Gerne stehen wir für eine Besichtigung zur Verfügung.
Objekt
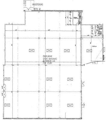
In einem großen, neuen Fachmarktzentrum mit gutem Branchenmix und optimaler Verkehrsanbindung stehen noch diverse multifunktionale Flächen zur Verfügung.
Der Eigentümer bietet variable Flächenanpassungen, Raumaufteilungen und...
Ausstattung
Lage: Regensburg - Südost
Mietpreis: EUR 10.800,-
Nebenkosten: werden je nach Nutzung festgelegt
Fläche: ca. 720 m²
Lageart: Einkaufszentrum
Kaution: Verhandlungssache
Geschoss(e): 1. Obergeschoss
Bezug: kurzfristig nach Ausbau
teilbar ab: nein
Stellplatzanzahl: 50
Stellplatzpreis...
Preisinformation
Nettokaltmiete: 10.800,00 EUR
Weitere Informationen
Sonstiges
Um eine schnelle Bearbeitung zu gewähren benötigen wir Ihre Telefonnummer sowie Ihre komplette Adresse.
Stichworte
Lagerfläche: 720,00 m², Nutzfläche: 720,00 m², Ladenfläche: 720,00 m², Verkaufsfläche: 720,00 m², Bundesland: Bayern, Nebenzentrumslage, Distanz zur Autobahn: 2, Distanz zum Bus: .5...
Anbieter der Immobilie

Trummer Immobilien GmbH & Co. KG
Online-ID: 2hn2k5g
Referenznummer: VL 2641h
Finde Angebote wie dieses
Hier geht es zu unserem Impressum, den Allgemeinen Geschäftsbedingungen, den Hinweisen zum Datenschutz und nutzungsbasierter Online-Werbung.