
IMMOHANSA Immobilien GmbH & Co. KG
Frau Jana Neff
004 ···
Nr. anzeigenPreise & Kosten
Provision für Käufer
3,57 % inkl. MwSt.
Lage
OT Jastorf liegt südöstlich der Kernstadt Bad Bevensen.
Am westlichen Ortsrand fließt die Ilmenau die zu weitläufigen Lauf- und Wanderausflügen einlädt.
Westlich von Jastorf fließt der Elbe-Seitenkanal.
Eine kleine Bäckerei sowie ein Café befindet sich im Ortskern.
Ein kleines Highlight ist der Baggersee...
Das Grundstück
Details
Objektbeschreibung
In der idyllischen Ortschaft Jastorf, unweit von Bad Bevensen, bieten wir ein großzügiges Grundstück mit einer Fläche von ca. 1.723 m² zum Verkauf an. Das Grundstück besticht durch seine ruhige Lage am Waldrand und eröffnet vielfältige Bebauungsmöglichkeiten.
Bebauungsoptionen:
Eine Vorplanung für ein...
Ausstattung
+ großes Eigentumsgrundstück mit altem Baumbestand am Waldrand
+ Grundstücksteilung möglich
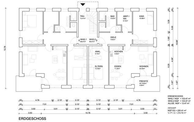
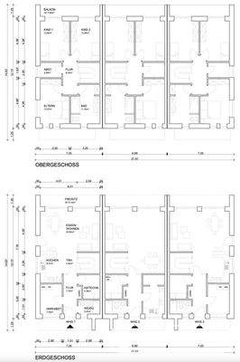
+ Vorplanung für MFH mit 4 Wohneinheiten
+ Reihenhaus mit 3 Einheiten
Preisinformation
4 Stellplätze
Weitere Informationen
Sonstiges
Sie erreichen unser Büro unter (04131) 776 442.
Ihre direkte Ansprechpartnerin ist Jana Neff.
Unsere Homepage finden Sie unter www.immohansa.de
Bitte haben Sie Verständnis dafür, dass wir Ihre Anfrage nach einem ausführlichen Exposé mit genauer Lage des Objektes, Grundrisszeichnungen...
Anbieter der Immobilie
IMMOHANSA Immobilien GmbH & Co. KG
Bunsenstr. 8, 21365 Adendorf
Online-ID: 2hnaq5v
Referenznummer: IH51564
Finde Angebote wie dieses
Hier geht es zu unserem Impressum, den Allgemeinen Geschäftsbedingungen, den Hinweisen zum Datenschutz und nutzungsbasierter Online-Werbung.