

Aptum GmbH
Herr Ole Patermann
+49 ···
Nr. anzeigenPreise & Kosten
Provision für Mieter
provisionsfrei
Warum sehe ich diese Anzeige? – Du siehst diese Anzeige basierend auf Ihrer Navigation auf unserer Website und den Suchkriterien, die du verwendet hast.
Lage
Die Liegenschaft befindet sich direkt an der hochfrequentierten Vahrenwalder Straße, die in ihrer nördlichen Verlängerung nur 5 Minuten zur Autobahn A2 führt. In südlicher Richtung mündet die Straße in Hannovers Innenstadt unweit des Hauptbahnhofs. Dieser wird ebenso von zahlreichen Bus- und Straßenbahnanbindungen, deren...
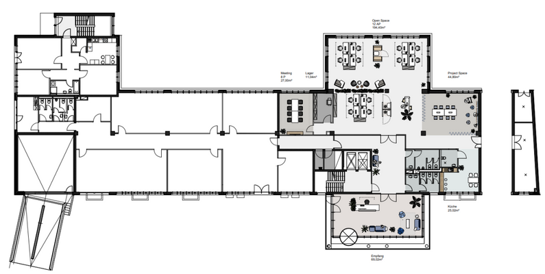
Die Ladenfläche
Bezug
ab sofort
Details
Objektbeschreibung
- Personenaufzug vorhanden
- Moderne Ausstattung
- CAT-7 Verkabelung in Bodentanks
- Glasfaseranschluss verfügbar
- Teeküche vorhanden
- Getrennte WC-Einheiten
- Tiefgaragenstellplätze verfügbar
- Außenliegender Sonnenschutz
Anbieter der Immobilie
Aptum GmbH
Hohenzollernstr. 13, 30161 Hannover

Online-ID: 2hnlp5w
Referenznummer: 1575
Finde Angebote wie dieses
Hier geht es zu unserem Impressum, den Allgemeinen Geschäftsbedingungen, den Hinweisen zum Datenschutz und nutzungsbasierter Online-Werbung.