
Wohnungsbörse Erzgebirge GmbH
Herr Mario Bley
004 ···
Nr. anzeigenPreise & Kosten
Provision für Käufer
3,57 % vom Kaufpreis inkl. der gesetzl. MwSt.
Lage
Das sanierte Mehrfamilienhaus befindet sich im Leipziger Ortsteil Zentrum-West im Nordwesten des Freistaats Sachsen. Leipzig liegt an der Weißen Elster, der Pleiße, der Parthe und der Luppe. Das Zentrum-West schließt sich westlich an die Innenstadt von Leipzig an, zwischen Thomaskirche, Neuem Rathaus und dem Elsterbecken.
Die Wohnung
Derzeitige Nutzung
vermietet
Wohnanlage
Energie & Heizung
Warum sehe ich diese Anzeige? – Du siehst diese Anzeige basierend auf Ihrer Navigation auf unserer Website und den Suchkriterien, die du verwendet hast.
Energieausweis: für diesen Gebäudetyp nicht notwendig
Weitere Energiedaten
Energieträger
Fernwärme
Details
Objektbeschreibung
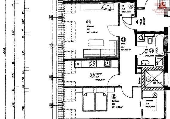
Die zum Verkauf stehende 2-Raum-Wohnung befindet sich im Dachgeschoss eines denkmalgeschützten Mehrfamilienhauses, welches 2009 umfassend saniert wurde.
Die Wohnung betreten Sie über einen Flur, von dem aus alle Zimmer erreichbar sind. Das Schlafzimmer mit begehbarer Ankleide, das Wohnzimmer, den Abstellraum, die...
Ausstattung
- 2-Raum-Wohnung
- 63,86 m² Wohnfläche
- Bad mit Wanne, Dusche und WC
- mtl. Hausgeld 233,04 € (davon 24,67 € IHR)
- 5.876,40 € Kaltmieteinnahme p.a.
Weitere Informationen
Sonstiges
Diese angebotene Immobilie wird auf der Basis eines exklusiven Alleinauftrages vermarktet. Aus diesem
Grund können Objektbesichtigungen nur mit uns vereinbart werden und mit unserer Anwesenheit
stattfinden. Wir stehen Ihnen dafür gerne zur Verfügung. Zur Freude und Sicherheit an der eigenen Immobilie...
Anbieter der Immobilie
Online-ID: 2hp8n5k
Referenznummer: 7643
Finde Angebote wie dieses
Weitere Immobilien
Hier geht es zu unserem Impressum, den Allgemeinen Geschäftsbedingungen, den Hinweisen zum Datenschutz und nutzungsbasierter Online-Werbung.