

Enjutin Immobilien
Herr David Enjutin
+49 ···
Nr. anzeigenPreise & Kosten
Provision für Käufer
3,57 %
Lage
Bad Camberg - Ihr Tor zum Erholungsparadies im Herzen des Taunus
Willkommen in Bad Camberg, einer malerischen Stadt, die sich im Herzen des wunderschönen Taunusgebirges befindet. Diese bezaubernde Stadt bietet nicht nur eine reiche historische Tradition, sondern ist auch ein beliebtes Reiseziel für Touristen und...
Gastronomie/Hotel
Baujahr
1900
Derzeitige Nutzung
vermietet
Energie & Heizung
Warum sehe ich diese Anzeige? – Du siehst diese Anzeige basierend auf Ihrer Navigation auf unserer Website und den Suchkriterien, die du verwendet hast.
Weitere Energiedaten
Energieträger
Öl
Details
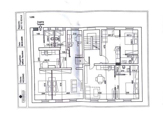
Objektbeschreibung
Investieren Sie in eine Renditeperle - Ihr neues Mehrfamilienhaus mit 10 exklusiven Apartments!
Profitables Investment in die Zukunft: Voll ausgelastete Apartments mit beachtlichem Umsatz
Herzlich willkommen bei diesem einzigartigen Mehrfamilienhaus, das derzeit als erfolgreiches Ferienvermietungsobjekt...
Ausstattung
10 vollständig sanierte Apartments: Alle Apartments wurden umfassend modernisiert und bieten zeitgemäßen Komfort.
Hochwertige Bäder: Die Badezimmer in den Apartments wurden stilvoll gestaltet und bieten den Gästen höchsten Komfort.
Moderne Elektrik: Die Elektrik im Gebäude wurde erneuert, um den aktuellen...
Preisinformation
5 Garagenstellplätze
Weitere Informationen
Energiepass
Energieausweis wird bei Besichtigung vorgelegt.
Stichworte
Garage vorhanden, Gesamtfläche: 320,00 m², 3 Etagen, modernisiert
Anbieter der Immobilie

Online-ID: 2hplg5c
Referenznummer: 1400
Finde Angebote wie dieses
Hier geht es zu unserem Impressum, den Allgemeinen Geschäftsbedingungen, den Hinweisen zum Datenschutz und nutzungsbasierter Online-Werbung.