
Trummer Immobilien GmbH & Co. KG
Herr Roland Trummer
094 ···
Nr. anzeigenPreise & Kosten
Provision für Käufer
Ortsübliche Provision vom Käufer/Mieter nur im Erfolgsfalle
Lage
Mallersdorf
Das Haus
Kategorie
Mehrfamilienhaus
Baujahr
1950
Bezug
3 Monate ab Kauf
Energie & Heizung
Warum sehe ich diese Anzeige? – Du siehst diese Anzeige basierend auf Ihrer Navigation auf unserer Website und den Suchkriterien, die du verwendet hast.
Weitere Energiedaten
Energieträger
Öl
Details
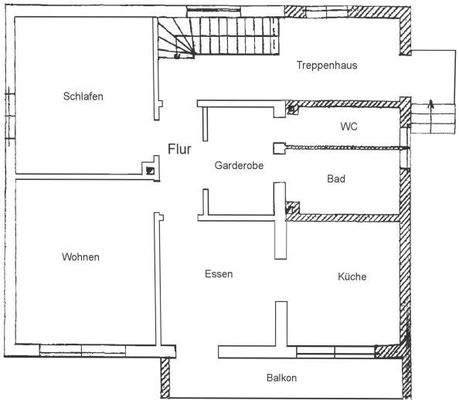
Objektbeschreibung
Kurzbeschreibung
Gerne stehen wir für eine Besichtigung zur Verfügung.
Objekt
Das ruhig gelegene Mehrfamilienhaus steht in Markt Mallersdorf-Pfaffenberg zum Verkauf. Eine gute Infrastruktur, Einkaufsmöglichkeiten sowie Ärzte, Schule usw. sind schnell zu erreichen. Das Freibad befindet sich in der Nähe.
...
Ausstattung
Lage: Mallersdorf
Kaufpreis: EUR 549.000.-
Fläche: ca. 240 m²
Wohnfläche: ca. 240 m²
Grundstück: ca. 760 m²
Zimmeranzahl: 8
Baujahr: 1950
letzte Modernisierung: 2023
Geschoss(e): KG+EG+OG+DG
Wohnfläche: ca. 240 m²
Gewerbefläche: ca. 0 m²
Bezug: 3 Monate ab Kauf
Stellplatzanzahl...
Weitere Informationen
Sonstiges
Wir befinden uns im Betriebsurlaub. Ab dem 07.01.2026 sind wir wieder wie gewohnt für Sie erreichbar. Um eine schnelle Bearbeitung zu gewähren benötigen wir Ihre Telefonnummer sowie Ihre komplette Adresse.
Stichworte
Gesamtfläche: 240,00 m², Bundesland: Bayern, modernisiert: 2023, Distanz zur Autobahn:...
Anbieter der Immobilie

Trummer Immobilien GmbH & Co. KG
Online-ID: 2hpvj5g
Referenznummer: RH 495
Finde Angebote wie dieses
Hier geht es zu unserem Impressum, den Allgemeinen Geschäftsbedingungen, den Hinweisen zum Datenschutz und nutzungsbasierter Online-Werbung.