

STAN GRAD d.o.o.
Herrn Ivan Radman
003 ···
Nr. anzeigenPreise & Kosten
Provision für Käufer
Bitte beachte, das Angebot beinhaltet bei Vertragsabschluss die Zahlung einer Provision. Weitere Informationen erhältst Du vom Anbieter.
Das Haus
Kategorie
Einfamilienhaus
Baujahr
2023
Details
Objektbeschreibung
Aus dem breiten Angebot an Immobilien an der nördlichen Adriaküste hebt sich bei der Agentur Stan Grad Immobilien eine beeindruckende moderne Villa hervor, die sich in der beliebten touristischen Region der Insel Krk befindet. Die Immobilie liegt an einem ruhigen Ort in der Nähe von Malinska, nicht weit vom Meer...
Weitere Informationen
Stichworte
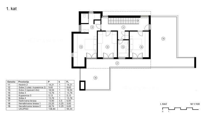
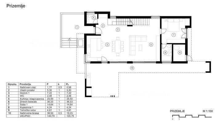
Anzahl der Schlafzimmer: 4, Anzahl der Badezimmer: 3, Anzahl der separaten WCs: 1, Anzahl der Wohn-Schlafzimmer: 2, Nebenzentrumslage
Anbieter der Immobilie
STAN GRAD d.o.o.
Ksavera Sandora Dalskog 29, 10410 VELIKA GORICA

Online-ID: 2hpzl59
Referenznummer: 102607
Finde Angebote wie dieses
Hier geht es zu unserem Impressum, den Allgemeinen Geschäftsbedingungen, den Hinweisen zum Datenschutz und nutzungsbasierter Online-Werbung.