

Myllek Immobilien
Herr Waldemar Myllek
+49 ···
Nr. anzeigenPreise & Kosten
Provision für Käufer
provisionsfrei
Lage
Naturverbunden & gut angebunden
Gorxheimertal-Unterflockenbach steht für entspanntes Wohnen mit Nähe zur Stadt. In nur 10 Minuten erreichen Sie Weinheim, während Sie gleichzeitig die Ruhe und Natur vor der Haustür genießen.
- Idyllische Lage mit Bachlauf & grünen Hügeln.
- Schulen, Kindergärten &...
Das Haus
Kategorie
Reihenendhaus
Geschosse
2 Geschosse
Baujahr
2025
Bezug
Q4 2025
Derzeitige Nutzung
frei
Energie & Heizung
Warum sehe ich diese Anzeige? – Du siehst diese Anzeige basierend auf Ihrer Navigation auf unserer Website und den Suchkriterien, die du verwendet hast.
Energieausweistyp
Bedarfsausweis
Gebäudetyp
Wohngebäude
Wesentliche Energieträger
Strom
Gültigkeit
09.05.2023 bis 09.05.2033
Effizienzklasse
A+
Endenergiebedarf
27,80 kWh/(m²·a)
Weitere Energiedaten
Haustyp
Massivhaus
Heizungsart
Fußbodenheizung, Luft-/Wasser-Wärmepumpe
Details
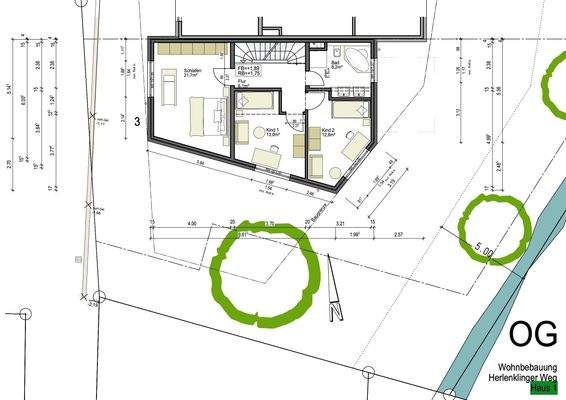
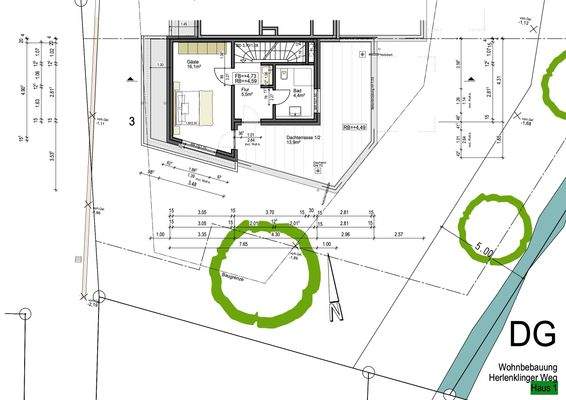
Objektbeschreibung
Reiheneckhaus mit großem Raumangebot – Dachterrasse & Garten inklusive
Haus Typ-1
166 m² Wohnfläche + 59 m² Nutzfläche | Neubau | Provisionsfrei
Modernes Design, großzügige Räume und eine erstklassige Lage: Dieses Reiheneckhaus überzeugt mit 166 m² Wohnfläche und einem vollausgebauten Keller mit 59 m²...
Ausstattung
Highlights, die überzeugen
- Viel Platz: 166 m² Wohnfläche + 59 m² zusätzliche Nutzfläche im Keller.
- Privater Garten mit Terrasse – Direkter Zugang ins Grüne.
- Traumhafte Dachterrasse mit Panorama-Blick.
- Helle, offene Räume mit großen Fensterfronten.
- Energieeffizienz auf höchstem Niveau –...
Weitere Informationen
Besichtigungstermine
Baustellenbesichtigung jetzt möglich!
Der Rohbau steht bereits, Fenster sind eingebaut, das Dach ist fertig. Dank Baustellentreppe können Sie sich schon jetzt einen realistischen Eindruck von Zuschnitt und Raumaufteilung verschaffen.
- Fertigstellung: Q4 2025
- Nutzen Sie unsere...
Anbieter der Immobilie
Myllek Immobilien
Galileistraße 9, 68165 Mannheim

Online-ID: 2hq8y5x
Referenznummer: HV2025GUT1
Finde Angebote wie dieses
Hier geht es zu unserem Impressum, den Allgemeinen Geschäftsbedingungen, den Hinweisen zum Datenschutz und nutzungsbasierter Online-Werbung.