
WOLF-Musterhaus Bad Vilbel
Herr Günter Hein
017 ···
Nr. anzeigenPreise & Kosten
Provision für Käufer
provisionsfrei
Lage
Direkt ums Eck des Mehrfamilienhauses befindet sich das moderne Gesundheitszentrum Margetshöchheims (Zahnarzt, Kieferorthopädie, prakt. Arzt, Physiotherapie etc.), direkt daneben die St. Margareten Apotheke. Ebenfalls in direkter Nähe eine Bäckerei mit kleinem Cafe und ein Biergarten mit regionalen Köstlichkeiten, wie z. B...
Das Haus
Kategorie
Reihenendhaus
Baujahr
2024
Bezug
2025
Energie & Heizung
Warum sehe ich diese Anzeige? – Du siehst diese Anzeige basierend auf Ihrer Navigation auf unserer Website und den Suchkriterien, die du verwendet hast.
Weitere Energiedaten
Haustyp
Fertighaus
Energieträger
Elektro
Heizungsart
Fußbodenheizung, Luft-/Wasser-Wärmepumpe
Details
Objektbeschreibung
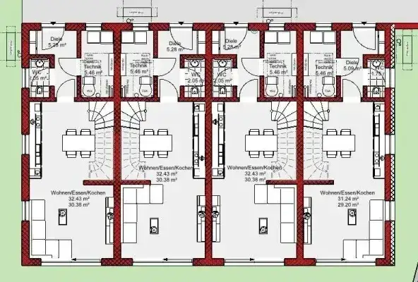
Für unsere Bauherren stehen hier zwei attraktive Reihenendhäuser, sowie 2 Reihenmittelhäuser in Margetshöchheim zur Verfügung. Die hier veröffentlichte Anzeige und der Preis beziehen sich auf das rechte Reihendhaus.
EG / OG / DG – 3 Etagen ausgebaut.
Die Fertigstellung (Einzug) ist geplant für 2025. Ob für...
Ausstattung
Das Mehrfamilienhaus wird baubiologisch in höchster Güte erstellt und mit einer Luft-Wasser-Wärmepumpe inkl. Fußbodenheizung ausgestattet. Es gelten selbstverständlich die energetischen Anforderungen des aktuell am 1. November 2020 in Kraft getretenen Gebäudeenergiegesetzes (GEG). Eine moderne, aber auch traditionelle...
Weitere Informationen
Weitere Informationen
Bauen mit WOLF-Haus heißt: individuell und frei geplant, energieeffizient und zukunftsorientiert, dauerhaft und wertbeständig – und das alles aus einer Hand mit einem Ansprechpartner für Ihr Bauvorhaben, auch für die Bodenplatte bzw. den Keller. Vertrauen Sie auf geprüfte Qualität und das Wissen von...
Anbieter der Immobilie
WOLF-Musterhaus Bad Vilbel
Ludwig-Erhard-Straße 16 , 61118 Bad Vilbel
Online-ID: 2hqhq5v
Referenznummer: AT122/549
Finde Angebote wie dieses
Hier geht es zu unserem Impressum, den Allgemeinen Geschäftsbedingungen, den Hinweisen zum Datenschutz und nutzungsbasierter Online-Werbung.