
BEST PLACE Immobilien GmbH & Co. KG
Ihr Best Place Vertriebsteam
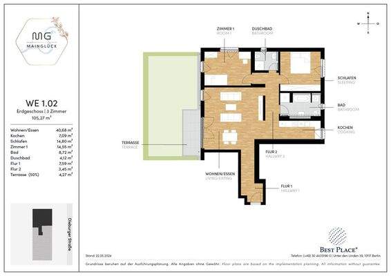
004 ···
Nr. anzeigenPreise & Kosten
Provision für Käufer
provisionsfrei
Lage
Fechenheim vereinigt das Beste von Frankfurt: direkte Nachbarschaft zum Großstadtfeeling und idyllische Lage im Mainbogen. Nur rund 600 m sind es bis zum Main. Es ist eine ausgezeichnete Gegend für eine aktive Freizeitgestaltung. Mit dem Fahrrad ist man schnell im Freizeitpark Mainblick-Ufer, beim Segelclub Undine, im...
Die Wohnung
Wohnungslage
Erdgeschoss
Bezug
30.06.2026
Wohnanlage
Energie & Heizung
Warum sehe ich diese Anzeige? – Du siehst diese Anzeige basierend auf Ihrer Navigation auf unserer Website und den Suchkriterien, die du verwendet hast.
Energieausweistyp
Bedarfsausweis
Gebäudetyp
Wohngebäude
Baujahr laut Energieausweis
2022
Wesentliche Energieträger
ELECTRICITY
Gültigkeit
bis 09.08.2032
Effizienzklasse
A+
Endenergiebedarf
14,00 kWh/(m²·a)
Weitere Energiedaten
Heizungsart
Fußbodenheizung
Details
Objektbeschreibung
Es entstehen attraktive Eigentumswohnungen in drei modernen Wohnhäusern in idyllischer Lage. Das Objekt bietet einen ausgewogenen Wohnungsmix, speziell für Eigennutzer oder Kapitalanleger: 1 bis 5 Zimmer, Wohnflächen ca. 29 m² bis ca. 158 m². Alle Wohneinheiten sind barrierefrei erreichbar. Zeitlose Ausstattungsdetails mit...
Ausstattung
. KfW 40 plus und KFN Förderung
.Gehobene Ausstattung mit Parkett, Fußbodenheizung, Fliesen im Format 30 x 60 cm und Sanitärobjekte von deutschen Markenherstellern
.Balkon, Terrasse oder Garten
.Tiefgaragenstellplätze
.Aufzug in alle Etagen
.Videogegensprechanlage
.Innovatives Smart Building-Konzept...
Weitere Informationen
Sonstiges
Der Bauträger bietet für Kapitalanleger eine kostenfreie, notariell abgesicherte Mietgarantie für 10 Jahre und für denselben Zeitraum einen kostenfreien Vermietungsservice bei jeder erneuten Vermietung.
Stichworte
Tiefgarage vorhanden, vermietbare Fläche: 105,27 m², Anzahl Terrassen: 1, Bundesland...
Anbieter der Immobilie
Online-ID: 2hr3p5m
Referenznummer: DIEB-WE102
Finde Angebote wie dieses
Hier geht es zu unserem Impressum, den Allgemeinen Geschäftsbedingungen, den Hinweisen zum Datenschutz und nutzungsbasierter Online-Werbung.