
Castellanum
Firma Castellanum Lazise
003 ···
Nr. anzeigenPreise & Kosten
Provision für Käufer
4% zzgl. MwSt.
Die Wohnung
Wohnungslage
1. Geschoss
Bezug
2027
Wohnanlage
Energie & Heizung
Warum sehe ich diese Anzeige? – Du siehst diese Anzeige basierend auf Ihrer Navigation auf unserer Website und den Suchkriterien, die du verwendet hast.
Weitere Energiedaten
Heizungsart
Fußbodenheizung
Details
Objektbeschreibung
In der malerischen Ortschaft Cavrie, Torri del Benaco, entsteht ein exklusives Neubauprojekt mit nur fünf Wohneinheiten, das modernes Wohnen mit höchstem Komfort und einer einzigartigen Lage vereint.
Genießen Sie den atemberaubenden Blick auf den Gardasee, stilvolle Architektur und nachhaltige Bauweise in einem...
Weitere Informationen
Stichworte
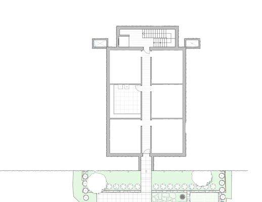
Verkaufsfläche: 90,24 m², Anzahl der Schlafzimmer: 2, Anzahl der Badezimmer: 1, Anzahl Terrassen: 1, Balkon-Terrassen-Fläche: 21,70 m², Kellerfläche: 5,00 m², 2 Etagen
Anbieter der Immobilie
Castellanum
Trattengasse 7, 37042 Brixen (BZ)
Online-ID: 2hs3s5x
Referenznummer: G00341_W03
Finde Angebote wie dieses
Hier geht es zu unserem Impressum, den Allgemeinen Geschäftsbedingungen, den Hinweisen zum Datenschutz und nutzungsbasierter Online-Werbung.