

Immobiliengesellschaft der Westerwald Bank mbH
Herr Ralph Krah
+49 ···
Nr. anzeigenPreise & Kosten
Provision für Mieter
1 KM zzgl. MwSt.
Warum sehe ich diese Anzeige? – Du siehst diese Anzeige basierend auf Ihrer Navigation auf unserer Website und den Suchkriterien, die du verwendet hast.
Lage
Das Stadtgebiet von Ransbach-Baumbach mit seinen ca. 7 800 Einwohnern, liegt im Zentrum des Kannenbäckerlandes, das in dem an das Mittelrheintal angrenzenden Teil des Westerwaldes liegt, etwa 15 Kilometer nordöstlich von Koblenz. Mit dem südlich der Autobahn gelegenen Teil der Waldgemarkung hat Ransbach-Baumbach Anteil am...
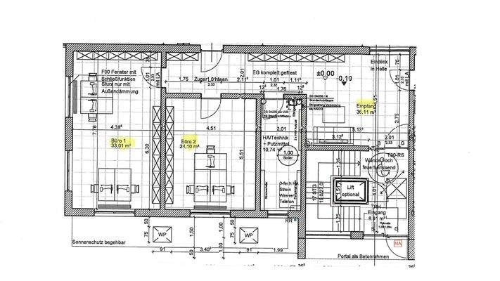
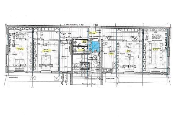
Büro-/Praxisfläche
Baujahr
2024
Energie & Heizung
Warum sehe ich diese Anzeige? – Du siehst diese Anzeige basierend auf Ihrer Navigation auf unserer Website und den Suchkriterien, die du verwendet hast.
Energieausweis: für diesen Gebäudetyp nicht notwendig
Details
Objektbeschreibung
Am Rande der Stadt Ransbach-Baumbach, geht in diesen Tagen eine technisch und architektonisch perfekt gestaltete Gewerbeimmobilie an den Start! In diesem Neubauobjekt bieten wir Ihnen eine großzügige Büro- und Praxisfläche zur Anmietung an.
Auf zwei Etagen angelegt, stehen hier rd. 270 m² Fläche zu Ihrer Verfügung. Im...
Weitere Informationen
Stichworte
Stellplatz vorhanden, Gesamtfläche: 270,00 m², Bundesland: Rheinland-Pfalz
Anbieter der Immobilie

Online-ID: 2hsbd5m
Referenznummer: 1 987 5 VM
Finde Angebote wie dieses
Hier geht es zu unserem Impressum, den Allgemeinen Geschäftsbedingungen, den Hinweisen zum Datenschutz und nutzungsbasierter Online-Werbung.