

Sterling Immobilien
Herr Maik Sterling
015 ···
Nr. anzeigenPreise & Kosten
Provision für Käufer
Die Käufer-Provision beträgt 3,57 % vom Kaufpreis inkl. MwSt.
Abschreibung/Anlage
Denkmalschutz-Afa
Lage
Das Grundstück liegt in der Lindenstraße, nur wenige Minuten von der Ascherslebener Innenstadt entfernt. Einkaufsmöglichkeiten, öffentliche Verkehrsmittel sowie Schulen und Ärzte sind fußläufig erreichbar. Die gute Verkehrsanbindung und die Nähe zur Natur sorgen für eine gute Erreichbarkeit der Immobilie.
Das Renditeobjekt
Energie & Heizung
Warum sehe ich diese Anzeige? – Du siehst diese Anzeige basierend auf Ihrer Navigation auf unserer Website und den Suchkriterien, die du verwendet hast.
Energieausweis: für diesen Gebäudetyp nicht notwendig
Details
Objektbeschreibung
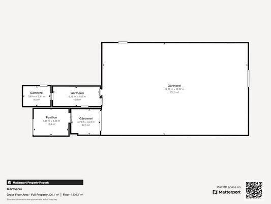
Die "Alte Gärtnerei" in Aschersleben bietet auf einer Fläche von circa 1.800 Quadratmetern vielseitige Nutzungsmöglichkeiten - sei es für Wohnen, Gewerbe, Veranstaltungen oder kreative Projekte. Das Grundstück liegt in einer ruhigen, aber gut angebundenen Lage und eignet sich sowohl für eine Fortführung der gärtnerischen...
Ausstattung
- Außenstellplätze
- eingezäuntes Gelände
Flächennutzungsplan: Gemischte Baufläche
Preisinformation
5 Stellplätze
Weitere Informationen
Sonstiges
Alle Daten in diesem Exposé beruhen auf Angaben des Eigentümers der Immobilie. Die Angaben zum Objekt sind von uns, Sterling-Immobilien.de, mit großer Sorgfalt zusammengestellt worden. Wir übernehmen keine Haftung für die Angaben des Angebotes, welche uns der Verkäufer/Anbieter übermittelt hat. Irrtümer bleiben...
Dokumente
Anbieter der Immobilie
Sterling Immobilien
Drosselweg 4, 06467 Hoym

Online-ID: 2hspz5v
Referenznummer: SI-805
Finde Angebote wie dieses
Hier geht es zu unserem Impressum, den Allgemeinen Geschäftsbedingungen, den Hinweisen zum Datenschutz und nutzungsbasierter Online-Werbung.