

corealis Commercial Real Estate GmbH
Herr Jens Reuther
021 ···
Nr. anzeigenPreise & Kosten
Provision für Mieter
provisionsfrei
Warum sehe ich diese Anzeige? – Du siehst diese Anzeige basierend auf Ihrer Navigation auf unserer Website und den Suchkriterien, die du verwendet hast.
Lage
Die Liegenschaft befindet sich im Düsseldorfer Norden im Büromarkt Mörsenbroicher Ei. Durch die verkehrsgünstige Lage des Objektes erreichen Sie in 5 Minuten die Autobahn A52 Richtung Düsseldorfer Flughafen. Auch die öffentliche Anbindung ist mit der vor der Tür liegenden Haltestelle "Mörsenbroicher Weg" ideal erschlossen. So...
Büro-/Praxisfläche
Kategorie
Bürofläche
Bezug
kurzfristig
Geschoss
4. Geschoss
Energie & Heizung
Warum sehe ich diese Anzeige? – Du siehst diese Anzeige basierend auf Ihrer Navigation auf unserer Website und den Suchkriterien, die du verwendet hast.
Weitere Energiedaten
Energieträger
Gas
Heizungsart
Zentralheizung
Details
Objektbeschreibung
Der Gebäudekomplex besteht aus drei Bauteilen, welche über ein repräsentatives Foyer miteinander verbunden sind. Alle Bauteile wurden im Jahre 2000 vollständig saniert und auf einen hochwertigen Gebäudestandard verbaut. Die Büroimmobilie besticht durch ein hauseigenes Restaurant, E-Ladesäulen, Leihfahrräder und Duschen mit...
Ausstattung
- Raumaufteilung nach Mieterwunsch
- vorgerichtete Teeküchen je Mieteinheit
- getrennte Damen- und Herren WC Einheiten
- Bodenbelag nach Mieterwunsch
- Kühldecken
Weitere Informationen
Sonstiges
- hauseigenes Bistro
- nachhaltige E-Ladesäulen
- Leihfahrräder für idyllische Touren im Grafenberger Wald
- Duschen mit Schließfächer
- Konferenzetage zur tageweisen Anmietung
Stichworte
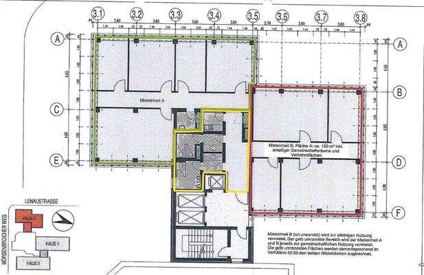
Gesamtfläche: 332,00 m², Bundesland: Nordrhein-Westfalen, 13 Etagen
Anbieter der Immobilie
corealis Commercial Real Estate GmbH
Hohe Straße 8-10, 40213 Düsseldorf

Online-ID: 2hsy95m
Referenznummer: 2031_005
Finde Angebote wie dieses
Hier geht es zu unserem Impressum, den Allgemeinen Geschäftsbedingungen, den Hinweisen zum Datenschutz und nutzungsbasierter Online-Werbung.