
Wertimmobilien Consulting KG
Herr Michael Fath
+43 ···
Nr. anzeigenPreise & Kosten
Provision für Käufer
3% des Kaufpreises zzgl. 20% USt.
Lage
WIENNÄHE
Das Haus
Kategorie
Einfamilienhaus
Baujahr
1983
Bezug
AB SOFORT
Energie & Heizung
Warum sehe ich diese Anzeige? – Du siehst diese Anzeige basierend auf Ihrer Navigation auf unserer Website und den Suchkriterien, die du verwendet hast.
Heizwärmebedarf (HWB)
189,10 kWh/(m²·a)
Gesamtenergieeffizienz (fGEE)
2,78
Weitere Energiedaten
Haustyp
Holzhaus
Energieträger
Elektro, Holz
Heizungsart
Ofen
Details
Objektbeschreibung
ZUM HAUS
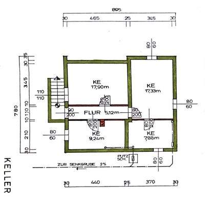
Das Einfamilienhaus liegt in Seyring, eine Katastralgemeinde von Gerasdorf und ist optimal nach Süden ausgerichtet. Der Eigengrund ist ca. 450,00 m². Die Nutzfläche des Hauses beträgt ca. 129,00 m² und hat 2,5 Zimmer. Das Haus ist komplett unterkellert.
Das Haus kann "sofort bezogen"...
Preisinformation
2 Stellplätze
Weitere Informationen
Stichworte
Stellplatz vorhanden, Süd-Ost-Balkon/Terrasse, Nutzfläche: 130,00 m², Anzahl der Badezimmer: 1, Anzahl der separaten WCs: 1, Anzahl Terrassen: 1, Balkon-Terrassen-Fläche: 14,00 m², Gartenfläche: 330,00 m², Kellerfläche: 57,47 m², Bundesland: Niederösterreich
Sonstiges: Kabelkanäle
Anbieter der Immobilie
Wertimmobilien Consulting KG
Schottenring 16, 1010 WIEN
Online-ID: 2ht7a5f
Referenznummer: OBGC202403282343410811926e05a6f
Finde Angebote wie dieses
Günstige Immobilienfinanzierung einfach online berechnen
Persönliches Angebot berechnenWarum sehe ich diese Werbung? – Du siehst diese Werbung basierend auf Deiner Navigation auf unserer Website und der von Dir verwendeten Suchkriterien.
Diese Werbung wird bezahlt von durchblicker
Werbung melden
Hier geht es zu unserem Impressum, den Allgemeinen Geschäftsbedingungen, den Hinweisen zum Datenschutz und nutzungsbasierter Online-Werbung.