
Ines Thüne Immobilien
Frau Ines Thüne
036 ···
Nr. anzeigenPreise & Kosten
Provision für Käufer
3,57% inkl. MwSt.
Das vom Käufer zu zahlende Das Maklerhonorar beträgt 3,57% (inkl. MwSt.) vom Kaufpreis und ist mit Unterzeichnung des notariellen Kaufvertrages zur Zahlung fällig!
Lage
Die hier angebotene Immobilie befindet sich in ruhiger und ländlicher Lage im malerischen Altengottern, direkt an der Unstrut gelegen. In Richtung Sömmerda führt der 192 km lange Unstrut-Radweg auf einer asphaltierten Strecke von 8 km durch Altengottern nach Thamsbrück.
Die Gemeinde Altengottern, die im Jahr 811 erstmals...
Das Haus
Kategorie
Einfamilienhaus
Baujahr
1948
Bezug
nach Absprache
Energie & Heizung
Warum sehe ich diese Anzeige? – Du siehst diese Anzeige basierend auf Ihrer Navigation auf unserer Website und den Suchkriterien, die du verwendet hast.
Energieausweistyp
Verbrauchsausweis
Gebäudetyp
Wohngebäude
Baujahr laut Energieausweis
1948
Wesentliche Energieträger
Gas
Gültigkeit
26.11.2024 bis 26.11.2034
Effizienzklasse
D
Endenergieverbrauch
106,80 kWh/(m²·a) - Warmwasser enthalten
Weitere Energiedaten
Haustyp
Massivhaus
Energieträger
Gas
Heizungsart
offener Kamin
Details
Objektbeschreibung
Bei der Nutzung dieses großzügigen Anwesens sind Ihnen fast keine Grenzen gesetzt. Die Immobilie bietet reichlich Platz für die große Familie, oder zwei bis drei Wohneinheiten.
Das Erdgeschoss im Hauptwohnhaus bietet neben dem großen und hellen Wohnzimmer mit gemütlichem Kaminofen, unmittelbar angrenzend, eine geräumige...
Ausstattung
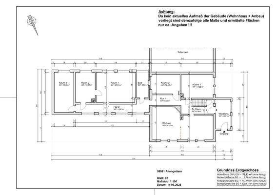
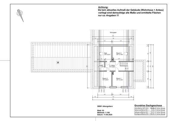
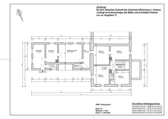
+Hauptwohnhaus (2 Vollgeschosse + Keller) Baujahr 1948, ca. 120m² Wohnfläche
+Anbau zweite Wohneinheit (1 Vollgeschoss + Keller) Baujahr 1973, ca. 80m² Wohnfläche
+Scheune mit Garagen + sanierungsbedürftige Wohnung + Nebengelass Baujahr 1948
+Dächer: Haupthaus 1993, Anbau 2012, Scheune 2010
+doppeltverglaste...
Preisinformation
6 Stellplätze
2 Garagenstellplätze
Weitere Informationen
Sonstiges
Haben wir Ihr Interesse für diese schöne Immobilie geweckt? Dann vereinbaren Sie telefonisch, oder per mail einen Besichtigungstermin!
Bitte haben Sie Verständnis dafür, dass wir Anfragen nur dann beantworten können, wenn die Kontaktdaten vollständig hinterlegt sind. Ihre Daten werden streng vertraulich...
Anbieter der Immobilie
Online-ID: 2ht9k55
Referenznummer: 7523#zB4KJk
Finde Angebote wie dieses
Hier geht es zu unserem Impressum, den Allgemeinen Geschäftsbedingungen, den Hinweisen zum Datenschutz und nutzungsbasierter Online-Werbung.