

IC IMMOCONSULT e.K.
Herr Ron Kaufmann
034 ···
Nr. anzeigenPreise & Kosten
Provision für Käufer
7,14 inkl. MwSt.
Der Käufer verpflichtet sich, bei Abschluss eines Kaufvertrags eine einmalige Maklerprovision in o.g. Höhe aus dem Gesamtentgelt für das Auftragsobjekt an den Makler zu zahlen. Weitere Informationen siehe Provisionshinweis.
Lage
Der Ort Krostitz befindet sich nördlich der Leipziger Innenstadt. Die Nähe zur City, zur A14
und zum Flughafen zeichnet die Attraktivität dieser Lage aus.
Hier befinden sich ein sehr schöner Kindergarten, die Grund- und die Mittelschule. Gute Einkaufmöglichkeiten, eine Apotheke und Ärzte sind fußläufig zu...
Die Immobilie
Zu diesem Angebot wurden vom Anbieter keine weiteren Daten hinterlegt. Für weitere Informationen bitte den Anbieter kontaktieren.
Nach Informationen fragenDetails
Objektbeschreibung
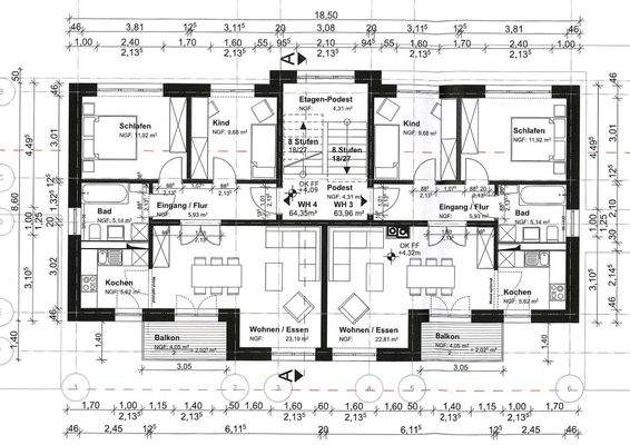
Baugrundstück mit in 08/2019 erteilter Baugenehmigung in Krostitz.
Die Baugenehmigung umfasste ein Mehrfamilienhaus mit vier Geschossflächen, für 6 Wohneinheiten und Kellergeschoss. Die Wohnfläche beträgt ca. 363,29 m².
Für jede Wohneinheit waren PKW-Stellplätze und Fahrrad-Stellplätze (im Keller)...
Ausstattung
- ca. 463 m² großes Baugrundstück
- Wohnfläche/Vermietbare Fläche: 363,29 m²
- Baugenehmigung liegt vor (bis 2023)
- MFH mit 6 Wohneinheiten
- 7 Stellplätze
- das Baugrundstück liegt in einer gewachsener Einfamilienhaussiedlung
- grüne Umgebung
- alle Medien liegen an der Straße an...
Weitere Informationen
Provisionshinweis
7,14 inkl. MwSt.
Der Käufer verpflichtet sich, bei Abschluss eines Kaufvertrags eine einmalige Maklerprovision in o.g. Höhe aus dem Gesamtentgelt für das Auftragsobjekt an den Makler zu zahlen. Die Provision wird bei Vertragsabschluss fällig. Als Vertragsabschluss gilt die Beurkundung des...
Anbieter der Immobilie
IC IMMOCONSULT e.K.
Hillerstraße 3, 04109 Leipzig

Online-ID: 2htdh5r
Referenznummer: 847k4444#yWqe1d
Finde Angebote wie dieses
Hier geht es zu unserem Impressum, den Allgemeinen Geschäftsbedingungen, den Hinweisen zum Datenschutz und nutzungsbasierter Online-Werbung.