
GS Great Sales GmbH
Herr Orlin Pavlov
+43 ···
Nr. anzeigenPreise & Kosten
inkl. Betriebskosten
Kaution
4.193,10 €
Provision für Mieter
Gemäß Erstauftraggeberprinzip bezahlt der Abgeber die Provision.
Warum sehe ich diese Anzeige? – Du siehst diese Anzeige basierend auf Ihrer Navigation auf unserer Website und den Suchkriterien, die du verwendet hast.
Lage
Die Wohnung befindet sich in zentraler Lage von Graz, nur wenige Gehminuten vom Lendplatz entfernt. In unmittelbarer nähe finden Sie eine hervorragende Anbindung an öffentliche Verkehrsmittel, zahlreiche Einkaufsmöglichkeiten sowie eine Vielzahl an Cafés und Restaurants. Die Altstadt und der Hauptbahnhof sind ebenfalls...
Die Wohnung
Wohnungslage
3. Geschoss
Bezug
sofort
Wohnanlage
Energie & Heizung
Warum sehe ich diese Anzeige? – Du siehst diese Anzeige basierend auf Ihrer Navigation auf unserer Website und den Suchkriterien, die du verwendet hast.
Heizwärmebedarf (HWB)
73,10 kWh/(m²·a)
Gesamtenergieeffizienz (fGEE)
0,88
Weitere Energiedaten
Energieträger
Fernwärme
Heizungsart
Fußbodenheizung
Details
Objektbeschreibung
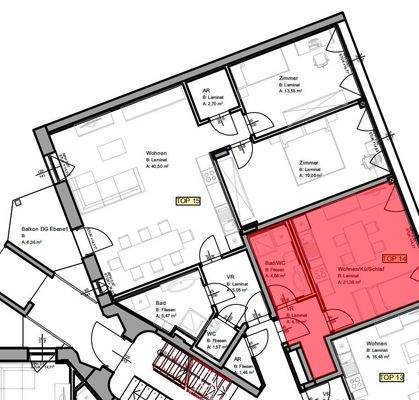
Diese exklusive Erstbezugswohnung überzeugt durch eine durchdachte Raumaufteilung und hochwertige Ausstattung. Auf großzügigen 87,88 m² erwarten Sie drei helle Zimmer: ein einladender Wohn-/Essbereich mit moderner Küche, zwei weitere Zimmer, ein Badezimmer, ein separates WC sowie ein praktischer Abstellraum. Der Balkon bietet...
Preisinformation
Nettokaltmiete: 1.140,00 EUR
Weitere Informationen
Stichworte
Ost-Balkon/Terrasse, Anzahl der Badezimmer: 1, Anzahl der separaten WCs: 1, Anzahl Balkone: 1, Balkon-Terrassen-Fläche: 6,36 m², Bundesland: Steiermark
Anbieter der Immobilie
GS Great Sales GmbH
Kärntner Straße 570b/5/Top 9, 8054 Seiersberg-Pirka
Online-ID: 2htef5j
Referenznummer: OBGC20241219173738651e2adb39e83
Finde Angebote wie dieses
Hier geht es zu unserem Impressum, den Allgemeinen Geschäftsbedingungen, den Hinweisen zum Datenschutz und nutzungsbasierter Online-Werbung.