
RUHR REAL GmbH
Herr Samuel Kruse
+49 ···
Nr. anzeigenPreise & Kosten
Provision für Mieter
3-4 Nettomonatsmieten
Bei Abschluss eines Mietvertrags über die angebotenen Mietflächen mit bis zu einschließlich fünf Jahren Laufzeit ist eine Provision in Höhe von 3,0 Nettomonatsmieten; bei einer Laufzeit von bis zu einschließlich sieben Jahren ist
Warum sehe ich diese Anzeige? – Du siehst diese Anzeige basierend auf Ihrer Navigation auf unserer Website und den Suchkriterien, die du verwendet hast.
Lage
Das Gebäude liegt im Bereich Rüttenscheid/Südviertel von Essen, nahe der Philharmonie und dem Stadtgarten. Aufgrund der direkten Anbindung an die Autobahn A40, sowie der Nähe zum Essener Hauptbahnhof, ist dieses Objekt besonders verkehrsgünstig gelegen. Zahlreiche Cafés und Restaurants, sowie Einkaufsmöglichkeiten und...
Büro-/Praxisfläche
Kategorie
Bürofläche
Bezug
nach Vereinbarung
Derzeitige Nutzung
frei
Details
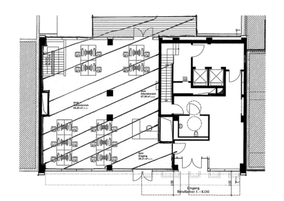
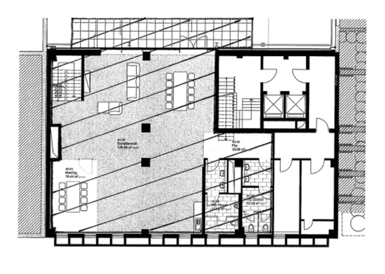
Objektbeschreibung
Bei der angebotenen Liegenschaft handelt es sich um ein modernes Bürogebäude, welches im Jahre 2022 vollständig saniert wurde. Die Büroflächen haben einen direkten Blick auf die Philharmonie und können separat voneinander angemietet werden. Alle Flächen sind über einen Personenaufzug oder das Treppenhaus zu erreichen...
Ausstattung
. Bodenbelag: PVC-Boden in Holzoptik
. EDV-Verkabelung: CAT-7 Verkabelung, Glasfaser
. Beleuchtung: Deckenleuchten
. Tiefgarage mit E-Ladesäulen
Die Ausstattung kann nach Absprache flexibel angepasst werden.
Preisinformation
Nettokaltmiete: 18,00 EUR
Weitere Informationen
Sonstiges
Es gelten ausschließlich unsere AGB (www.ruhr-real.de/agb). Wir möchten Sie darauf hinweisen, dass die Angaben ausschließlich auf den uns vom Eigentümer übermittelten Unterlagen und Informationen basieren. Für Richtigkeit und Vollständigkeit übernehmen wir keine Gewähr. Zwischenvermietung...
Anbieter der Immobilie

RUHR REAL GmbH
Holsterhauser Platz 2, 45147 Essen
Online-ID: 2hu5x5q
Referenznummer: 1857/E3
Finde Angebote wie dieses
Hier geht es zu unserem Impressum, den Allgemeinen Geschäftsbedingungen, den Hinweisen zum Datenschutz und nutzungsbasierter Online-Werbung.