
DAHLER Osnabrück
Frau Sophia Werner
004 ···
Nr. anzeigenPreise & Kosten
Provision für Käufer
3,57 % inklusive der gesetzlichen MwSt. bezogen auf den Kaufpreis
Lage
Das Neubauprojekt befindet sich in einer der begehrtesten Wohngegenden am Osnabrücker Westerberg. Das Musikerviertel bietet neben seines exklusiven Wohnumfeldes ausgezeichnete Naherholungsmöglichkeiten durch die direkte Lage zum Kammweg des Westerberges, der das Heger Holz bzw. den Rubbebruchsee mit der Innenstadt verbindet...
Die Wohnung
Wohnungslage
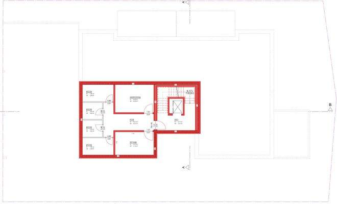
Erdgeschoss
Wohnanlage
Energie & Heizung
Warum sehe ich diese Anzeige? – Du siehst diese Anzeige basierend auf Ihrer Navigation auf unserer Website und den Suchkriterien, die du verwendet hast.
Energieausweistyp
Bedarfsausweis
Gebäudetyp
Wohngebäude
Wesentliche Energieträger
LUFTWP
Gültigkeit
bis 29.10.2034
Effizienzklasse
A+
Endenergiebedarf
30,79 kWh/(m²·a)
Weitere Energiedaten
Heizungsart
Luft-/Wasser-Wärmepumpe, Zentralheizung
Details
Objektbeschreibung
Im beliebten Musikerviertel am Westerberg in Osnabrück entsteht ein exklusives Neubauprojekt, das durch seine hochwertige Bauweise und modernen Wohnkomfort überzeugt. Das Gebäude umfasst drei Wohneinheiten auf zwei Etagen und wird nach dem KfW-40-Standard errichtet.
Im Erdgeschoss befinden sich zwei großzügige...
Ausstattung
Das Neubauprojekt mit drei Wohneinheite am Westerberg zeichnet sich durch eine hochwertige Ausstattung und modernen Wohnkomfort aus. Das Gebäude wird im innovativen KfW-40-Standard gebaut und garantiert damit ein hohes Maß an Energieeffizienz und Nachhaltigkeit.
Die drei Wohneinheiten sind mit großen Fensterflächen...
Preisinformation
1 Carportplatz, Kaufpreis: 20.000,00 EUR
Weitere Informationen
Stichworte
Anzahl der Schlafzimmer: 3, Anzahl der Badezimmer: 2, Anzahl Terrassen: 1, 2 Etagen
Anbieter der Immobilie
DAHLER Osnabrück
Nikolaiort 5 a, 49074 Osnabrück
Online-ID: 2hu685r
Referenznummer: DC-OSN668331_1
Finde Angebote wie dieses
Hier geht es zu unserem Impressum, den Allgemeinen Geschäftsbedingungen, den Hinweisen zum Datenschutz und nutzungsbasierter Online-Werbung.