
LUDWIG imMOBILien
Herr Jens Ludwig
+49 ···
Nr. anzeigenPreise & Kosten
Provision für Mieter
3,57 Netto -Monatsmiete(n) (inkl. MwSt)
Warum sehe ich diese Anzeige? – Du siehst diese Anzeige basierend auf Ihrer Navigation auf unserer Website und den Suchkriterien, die du verwendet hast.
Büro-/Praxisfläche
Bezug
Bezug nach Vereinbarung möglich
Energie & Heizung
Warum sehe ich diese Anzeige? – Du siehst diese Anzeige basierend auf Ihrer Navigation auf unserer Website und den Suchkriterien, die du verwendet hast.
Wärme
Strom
Energieausweistyp
Verbrauchsausweis
Gebäudetyp
Nicht-Wohngebäude
Baujahr laut Energieausweis
1994
Gültigkeit
bis 21.02.2029
Endenergieverbrauch (Wärme)
73,00 kWh/(m²·a) - Warmwasser enthalten
Endenergieverbrauch (Strom)
49,00 kWh/(m²·a) - Warmwasser enthalten
Weitere Energiedaten
Energieträger
Gas
Details
Objektbeschreibung
Objektbeschreibung
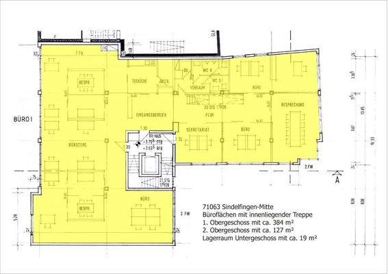
Diese neu zu vermietende uns absolut hochwertig ausgestattete Bürofläche befindet sich in einem modernen Geschäftsgebäude aus dem Jahr 1996 in der Innenstadt von Sindelfingen. Der Marktplatz befindet sich nur wenige Meter entfernt. Sämtliche Einkaufsmöglichkeiten u.a. das Sterncenter, etliche...
Ausstattung
Hochwertige und moderne Ausstattung:
+ helle Räume
+ Teppichboden/Laminat
+ Glaswände
+ Stehleuchten
+ abgehängte Decke
+ Kabelkanäle mit EDV/Telefonverkabelung
+ Glasfaseranschluss im Gebäude
+ Serverraum
+ Raumhöhe ca. 2,78 m
+ elektrische Aussenjalousien
+ 2 WC´s
+ Dusche
+...
Preisinformation
Bürofläche EUR 7.665,00/mtl. (EUR 15,00/m²)
7 Tiefgaragenstellplätze EUR 490,00/mtl. (EUR 70,00/Stpl.)
Lagerfläche EUR 140,00/mtl.
Nettomiete EUR 8.295,00/mtl.
Nebenkostenvorauszahlung EUR 1.000,00/mtl.
Zwischensumme EUR 9.295,00/mtl.
zzgl. 19% MwSt. EUR 1.766,05/mtl.
Bruttomiete EUR...
Weitere Informationen
Miete
Bürofläche EUR 7.665,00/mtl. (EUR 15,00/m²)
7 Tiefgaragenstellplätze EUR 490,00/mtl. (EUR 70,00/Stpl.)
Lagerfläche EUR 140,00/mtl.
Nettomiete EUR 8.295,00/mtl.
Nebenkostenvorauszahlung EUR 1.000,00/mtl.
Zwischensumme EUR 9.295,00/mtl.
zzgl. 19% MwSt. EUR 1.766,05/mtl.
Bruttomiete EUR...
Anbieter der Immobilie

LUDWIG imMOBILien
Rüsternweg 7, 70597 Stuttgart
Online-ID: 2huax5z
Referenznummer: P834
Finde Angebote wie dieses
Hier geht es zu unserem Impressum, den Allgemeinen Geschäftsbedingungen, den Hinweisen zum Datenschutz und nutzungsbasierter Online-Werbung.