
Antaris Immobilien GmbH
Frau Sandy Thorwirth
+49 ···
Nr. anzeigenPreise & Kosten
Provision für Mieter
1,19 Monatsmieten inkl. MwSt. vom Mieter
Warum sehe ich diese Anzeige? – Du siehst diese Anzeige basierend auf Ihrer Navigation auf unserer Website und den Suchkriterien, die du verwendet hast.
Lage
Die Gustav-Weißkopf-Straße befindet sich im beliebten Stadtteil Erfurt-West, in direkter Nähe zum Erfurter Kreuz und mit idealer Anbindung an das überregionale Verkehrsnetz. Die Lage punktet durch ihre gute Erreichbarkeit: Die A4 und A71 sind in wenigen Fahrminuten erreichbar, ebenso wie die Innenstadt von Erfurt. In...
Büro-/Praxisfläche
Kategorie
Bürofläche
Baujahr
1995
Energie & Heizung
Warum sehe ich diese Anzeige? – Du siehst diese Anzeige basierend auf Ihrer Navigation auf unserer Website und den Suchkriterien, die du verwendet hast.
Wärme
Strom
Energieausweistyp
Verbrauchsausweis
Gebäudetyp
Nicht-Wohngebäude
Baujahr laut Energieausweis
1995
Wesentliche Energieträger
Erdgas schwer
Gültigkeit
02.09.2014 bis 02.09.2024
Endenergieverbrauch (Wärme)
180,80 kWh/(m²·a)
Endenergieverbrauch (Strom)
20,90 kWh/(m²·a)
Details
Objektbeschreibung
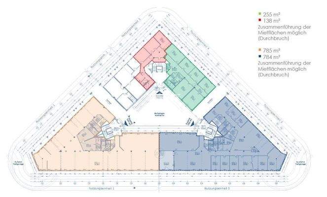
In der Gustav-Weißkopf-Straße 3,5,7 steht ein modernes Bürohaus mit verschiedenen Gewerbeeinheiten zur Verfügung. Die Flächen sind in unterschiedlichen Größen zwischen 161 m² und ca. 1.600 m² verfügbar und eignen sich ideal für Unternehmen verschiedenster Branchen. Das Objekt bietet sowohl bereits strukturierte Büroeinheiten...
Ausstattung
Aufgrund des einzigartigen Zuschnittes können unterschiedlichste Flächengrößen angeboten werden. Es gibt teilweise klar sturkturierte Einheiten und auch Flächen mit absoluter Callcenter-Eignung. In die Einheiten gelangen Sie über 3 ansprechende Treppenhäuser, die alle über einen Personenaufzug verfügen. Aufgrund eines...
Weitere Informationen
Sonstiges
Provision
Der Maklervertrag mit der antaris Immobilien GmbH kommt entweder durch eine schriftliche Vereinbarung oder durch die Inanspruchnahme unserer Maklertätigkeit auf Basis der Anforderung des Objekt-Exposés und der beinhalteten Bestimmungen zustande (siehe auch AGB). Abweichend von unseren Allgemeinen...
Anbieter der Immobilie
Online-ID: 2hury5z
Referenznummer: P251025/G1/Eh20
Finde Angebote wie dieses
Hier geht es zu unserem Impressum, den Allgemeinen Geschäftsbedingungen, den Hinweisen zum Datenschutz und nutzungsbasierter Online-Werbung.