

Lagerhalle zur Miete - Erstbezug9,50 €/m²590 m² Lagerfläche • teilbar ab 590 m²
9,50 €
/m²
590 m² Lagerfläche • teilbar ab 590 m²
590 m² - Neubau Fertigungsfläche im Erdgeschoss mit Büro in Steglitz! *2790*
Merkmale
- Bezug: nach Vereinbarung
- Lastenaufzug
- Bodenbelag: Stein
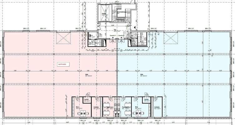
Grundrisse
Grundrisse
1 / 1
Realisiere Dein Projekt
Bausubstanz und Energie
Der Anbieter hat keine Informationen zum Energieverbrauch bereit gestellt.
- Baujahr2023
- Zustand der ImmobilieErstbezug
Mietkosten
Monatliche Miete
9,50 €/m²
Provision für Mieter
PROVISIONSFREI FÜR DEN MIETER!
Kaution
keine Angabe
Lage

Lankwitz, Berlin (12249)
Der Anbieter hat die genaue Adresse nicht freigegeben
Weitere Informationen
Weitere Services
Lust auf eine Besichtigung?
Eine Frage zur Immobilie?
Über den Anbieter
Kirchblick 3, 14129 Berlin
Partnerschaft
Frau Sabine SauerDein Kontakt
Online-ID: 2hve35j
Referenznummer: 3445#CqXe5N

Werner und Sabine Sauer KG Fachmakler für Gewerbeimmobilien
Bewertung: 5 von 5 Sternen
Wie zufrieden bist du mit dieser Seite (nicht mit der Immobilie selbst)?
