

BAVARIA WERTIMMOBILIEN
Herr Robert Fürbeck
+49 ···
Nr. anzeigenPreise & Kosten
zzgl. Nebenkosten
Provision für Mieter
provisionsfrei
Warum sehe ich diese Anzeige? – Du siehst diese Anzeige basierend auf Ihrer Navigation auf unserer Website und den Suchkriterien, die du verwendet hast.
Lage
Das Gebäude befindet sich zentral im Gewerbegebiet Garching-Hochbrück in der Gutenbergstraße. Die U-Bahn U6 Garching-Hochbrück ist fußläufig erreichbar - ideal für Ihre Mitarbeiter.
Die Industriefläche
Kategorie
Werkstatt
Baujahr
1990
Energie & Heizung
Warum sehe ich diese Anzeige? – Du siehst diese Anzeige basierend auf Ihrer Navigation auf unserer Website und den Suchkriterien, die du verwendet hast.
Weitere Energiedaten
Energieträger
Gas
Heizungsart
Zentralheizung
Details
Objektbeschreibung
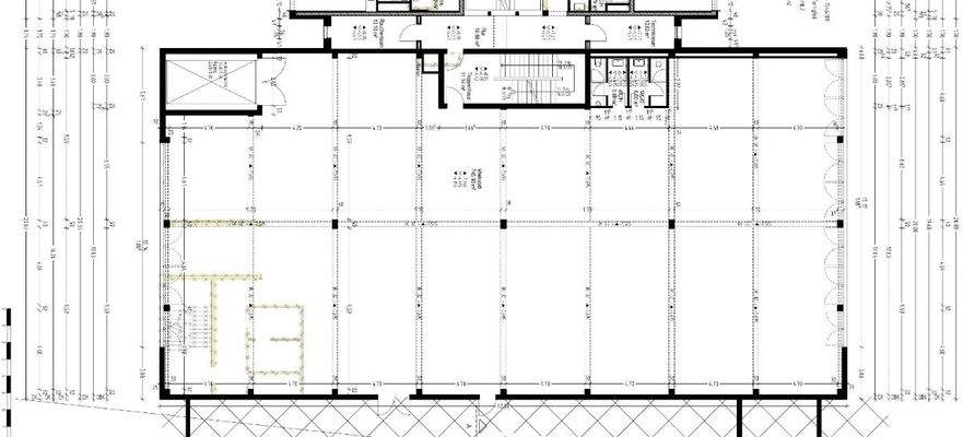
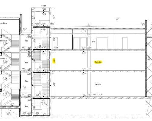
Konkret wird hier eine Werkstattfläche von ca. 350 m² beworben, die sich als Werkstatt- oder Lagerfläche nutzen lässt. Die Fläche befindet sich im 1.OG und ist über einen Schwerlastaufzug erreichbar, der auch für z.B. PKWs geeignet ist. Die Deckenhöhe ist zwischen 3,00m und 3,50m. Es stehen getrennte Toiletten für Herren und...
Preisinformation
2 Stellplätze
Weitere Informationen
Sonstiges
Alle Angaben sind freibleibend, unverbindlich und basieren ausschließlich auf Informationen, die uns von unserem Auftraggeber mitgeteilt wurden. Wir übernehmen keine Gewähr für Vollständigkeit, Richtigkeit und Aktualität. Eine Zwischenvermittlung bleibt vorbehalten.
Ansprechpartner: Robert...
Anbieter der Immobilie

Online-ID: 2hvf552
Referenznummer: NOZG1HDE
Finde Angebote wie dieses
Hier geht es zu unserem Impressum, den Allgemeinen Geschäftsbedingungen, den Hinweisen zum Datenschutz und nutzungsbasierter Online-Werbung.