Version: 8.24.0Navigation Ăźberspringen
575 €
125 m² Lagerfläche
Immowelt logo

Werkstatt zur Miete • provisionsfrei
575 €
125 m² Lagerfläche

125m² o. 103m² o. 77m² Werkstatt-/Lagerflächen mit großem Tor – flexibel nutzbar in zentraler Lage Waldkraiburg (provisionsfrei)

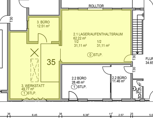
Zur Vermietung stehen zwei vielseitig nutzbare Werkstatt-/ Lagerflächen im Gewerbezentrum Porschestraße 12, in Waldkraiburg. Die Werkstatt-/ Lagerflächen eignen sich ideal für Handwerksbetriebe, Lager, atelierähnliche Nutzungen und Oldtimer Pflege. Große Tore, praktische Grundrisse und eine gute Erreichbarkeit zeichnen die beiden Einheiten aus. Nutzungshinweis: Eine Nutzung als KFZ-Betrieb ist nicht möglich. Einheit 1: ca. 125 m² Werkstatt-/Lager • Ca. 63 m² Werkstattfläche mit großem Tor und separatem Büro • Ca. 62 m² Atelier-/Aufenthaltsbereich mit Teeküche mit eigenem Zugang und Rolltor • Zusätzlich ca. 35 m² Hochregallager mit Lastenaufzug (nicht in der Mietfläche enthalten) • WC verfügbar • Eigene Gasheizung Miete: • Kaltmiete: € 575,00 (Verhandlungsbasis) • Nebenkosten: € 75,00 • Zzgl. Kosten für Strom/Gas/Medien • Zzgl. 19 % MwSt. • Verfügbar: sofort Einheit 2: ca. 103 m² Werkstatt-/Lager • Großes Tor ca. 3,30 m breit x 3,80 m hoch • Wasseranschluss vorhanden • Optionale Frostschutzheizung (Gas-Einzelofen) • WC-Nutzung im Hauptgebäude Miete: • Kaltmiete: € 538,00 (Verhandlungsbasis) • Nebenkosten: € 65,00 • Zzgl. Kosten für Strom/Medien • Zzgl. 19 % MwSt. • Verfügbar: ab 01.04.2026 Einheit 3: ca. 77 m² Werkstatt-/Lager • Großes Tor ca. 3,20 m breit x 3,50 m hoch • Wasseranschluss vorhanden • WC-Nutzung im Hauptgebäude Miete: • Kaltmiete: € 398,00 (Verhandlungsbasis) • Nebenkosten: € € 50,00 • Zzgl. Kosten für Strom/Medien • Zzgl. 19 % MwSt. • Verfügbar: ab 01.04.2026

Merkmale

  • Lastenaufzug
  • DSL-Anschluss
  • Bodenbelag: Holzdielen, Kunststoff
• Große Tore für Anlieferung • Gepflegter Gesamtzustand • Hausmeisterservice vor Ort • Flexible Nutzungsmöglichkeiten • Weitere Büro-, Lager- oder Werkstattflächen bei Bedarf zumietbar

Grundrisse

Grundrisse
1 / 3

Realisiere Dein Projekt

Bausubstanz und Energie

Energieausweis

Endenergieverbrauch (Wärme)

  • Baujahr1963
Immowelt logo

Mietkosten

Nettomiete
575 €
Nebenkosten
75 €
Heizkosten
nicht in Nebenkosten enthalten
Provision fĂźr Mieter
provisionsfrei; Kaution 3 MM brutto
Kaution
keine Angabe

Lage

address-icon
Waldkraiburg (84478)
Der Anbieter hat die genaue Adresse nicht freigegeben
Die Flächen befinden sich im Gewerbezentrum Porschestraße 12 mit einer Mischung aus etablierten Handwerksbetrieben, Dienstleistern, und Start-Ups. Das Zentrum von Waldkraiburg ist fußläufig in ca. 5-10 Minuten erreichbar. Gute Anbindung für Mitarbeiter, Kunden, und Lieferverkehr.

Weitere Services

Lust auf eine Besichtigung?
Eine Frage zur Immobilie?
Nachricht hinzufĂźgen
Mit der Nutzung der oben angegebenen Telefonnummer oder durch Klicken auf „Kontaktieren“ akzeptierst Du die Allgemeinen Nutzungsbedingungen, denen Du jederzeit widersprechen kannst. Weitere Informationen zum Datenschutz

Über den Anbieter

Leonburgstraße 14, 81545 München
Frau NeumannDein Kontakt
Keine Telefonnummer hinterlegt
Keine Telefonnummer hinterlegt
Online-ID: 2hvqv5w
Verwaltung Neumann - Liegenschaften & Gewerbezentrum
Nachricht hinzufĂźgen
Mit der Nutzung der oben angegebenen Telefonnummer oder durch Klicken auf „Kontaktieren“ akzeptierst Du die Allgemeinen Nutzungsbedingungen, denen Du jederzeit widersprechen kannst. Weitere Informationen zum Datenschutz
Wie zufrieden bist du mit dieser Seite (nicht mit der Immobilie selbst)?