
blueHOMES AG
Herr Michael Islinger
Kontaktiere den Anbieter schriftlich, es ist keine Telefonnummer hinterlegt.
Preise & Kosten
Provision für Käufer
zzgl. 3,57% für den Käufer (inkl. ges. MWST)
Das Haus
Kategorie
Einfamilienhaus
Details
Objektbeschreibung
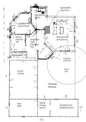
Energieausweis: ZU DIESER IMMOBILIE LIEGT DERZEIT NOCH KEIN ENERGIEAUSWEIS VOR. IN VORBEREITUNG. Schönes Anwesen, Bungalow modern und antik möbliert. Geeignet für 2 Parteien. Voll klimatisiert, Sauna, zentraler Kachelofen. Grundstück voll eingezäunt, Gästehaus ca. 40 qm, Werkstatt, mehrere Zweckgebäude. Interesse? Bitte...
Weitere Informationen
Ihr/e Ansprechpartner/in
Ihr blueHOMES Serviceteam
Anbieter der Immobilie

blueHOMES AG
Implerstraße. 16, 81371 München
Herr Michael Islinger
Dein Ansprechpartner
Kontaktiere den Anbieter schriftlich, es ist keine Telefonnummer hinterlegt.
Online-ID: 2hvsa5r
Referenznummer: PD7014
Finde Angebote wie dieses
Hier geht es zu unserem Impressum, den Allgemeinen Geschäftsbedingungen, den Hinweisen zum Datenschutz und nutzungsbasierter Online-Werbung.