

corealis Commercial Real Estate GmbH
Herr Jens Reuther
021 ···
Nr. anzeigenPreise & Kosten
Provision für Mieter
provisionsfrei
Warum sehe ich diese Anzeige? – Du siehst diese Anzeige basierend auf Ihrer Navigation auf unserer Website und den Suchkriterien, die du verwendet hast.
Lage
Die Liegenschaft befindet sich im Industrie- und Gewerbegebiet Bonner Straße in Neuss-Uedesheim. Exzellente Verkehrsanbindungen zeichnen den Gewerbepark Fuggerstraße aus. Der Flughafen Düsseldorf ist in nur 10 Minuten verfügbar. In 1 km Entfernung befindet sich der Rhein-Hafen Düsseldorf/Neuss. Ebenso sind die...
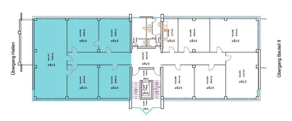
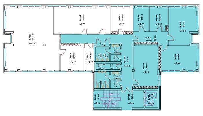
Büro-/Praxisfläche
Kategorie
Bürofläche
Bezug
kurzfristig
Geschoss
2. Geschoss
Energie & Heizung
Warum sehe ich diese Anzeige? – Du siehst diese Anzeige basierend auf Ihrer Navigation auf unserer Website und den Suchkriterien, die du verwendet hast.
Weitere Energiedaten
Energieträger
Gas
Heizungsart
Zentralheizung
Details
Objektbeschreibung
Drei repräsentative, architektonisch ansprechende Bürokomplexe, ein großzügiges Lagergebäude sowie ein lichtdurchflutetes Seminarzentrum zeichnen den Gewerbepark Fuggerstraße aus. Die Liegenschaft wurde hochwertig als Europazentrale für Nissan in den 80er und 90er Jahren erbaut. Modern und bezeizbare Lagergebäude sowie eine...
Ausstattung
Stahl-Beton-Rahmenkonstruktion
Fassade mit farbigen Sichtbetonelementen
großzügige Grünanlagen
Seminarzentrum:
großzügige Fensterfront
Fußbodenheizung
Weitere Informationen
Sonstiges
Auf Grund der im weiteren Verlauf der Jagenbergstraße kurzfristig erreichbaren BAB Anschlüsse der Autobahnen A46 und A57 verfügt der Standort über eine gute Anbindung an das überregionale Verkehrsnetz.
Darüber hinaus befindet sich die Bushaltestelle der Linie 827 in unmittelbarer Entfernung vom...
Anbieter der Immobilie
corealis Commercial Real Estate GmbH
Hohe Straße 8-10, 40213 Düsseldorf

Online-ID: 2hw595m
Referenznummer: 1802_004
Finde Angebote wie dieses
Hier geht es zu unserem Impressum, den Allgemeinen Geschäftsbedingungen, den Hinweisen zum Datenschutz und nutzungsbasierter Online-Werbung.