
Trummer Immobilien GmbH & Co. KG
Herr Roland Trummer
094 ···
Nr. anzeigenPreise & Kosten
Kaution
19.815,00 Soweit nicht anders erwähnt 3 Monatsmieten
Provision für Mieter
Ortsübliche Provision vom Käufer/Mieter nur im Erfolgsfalle
Warum sehe ich diese Anzeige? – Du siehst diese Anzeige basierend auf Ihrer Navigation auf unserer Website und den Suchkriterien, die du verwendet hast.
Lage
Regensburg - östlicher Zentrumsrand
Büro-/Praxisfläche
Kategorie
Bürofläche
Baujahr
2017
Bezug
sofort
Energie & Heizung
Warum sehe ich diese Anzeige? – Du siehst diese Anzeige basierend auf Ihrer Navigation auf unserer Website und den Suchkriterien, die du verwendet hast.
Weitere Energiedaten
Energieträger
Gas
Details
Objektbeschreibung
Kurzbeschreibung
Gerne stehen wir für eine Besichtigung zur Verfügung.
Objekt
Die zur Vermietung angebotene Büro- oder Praxisfläche befindet sich am östlichen Zentrumsrand von Regensburg. Durch die nahegelegene Bundesstraße B 8 und Osttangente besteht eine gute Verkehrsanbindung. Eine Bushaltestelle befindet sich...
Ausstattung
Lage: Regensburg - östlicher Zentrumsrand
Mietpreis: EUR 6.605,-
Nebenkosten: EUR 938,-
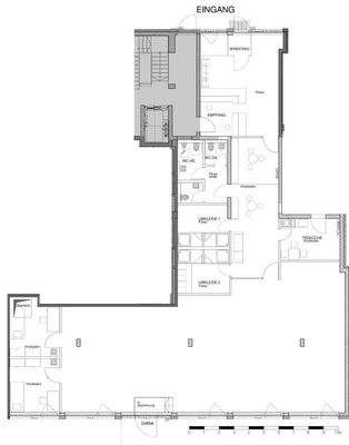
Fläche: ca. 384 m²
Zimmeranzahl: 11
Baujahr: 2017
Kaution: EUR 19.815,-
Geschoss(e): EG + 1. OG
Bezug: sofort
teilbar ab: ca. 298 m²
Stellplatzanzahl: 7
Stellplatzpreis: EUR 78,-
Fußweg zum...
Preisinformation
1 Stellplatz, Miete: 78,00 EUR
Nettokaltmiete: 6.605,00 EUR
Weitere Informationen
Sonstiges
Um eine schnelle Bearbeitung zu gewähren benötigen wir Ihre Telefonnummer sowie Ihre komplette Adresse.
Stichworte
Stellplatz vorhanden, Nutzfläche: 384,00 m², Bundesland: Bayern, Distanz zur Autobahn: 5, Distanz zum Bus: .3, Distanz zum Hauptbahnhof: 3, Distanz zum Flughafen:...
Anbieter der Immobilie

Trummer Immobilien GmbH & Co. KG
Online-ID: 2hx2k5g
Referenznummer: VB 3856
Finde Angebote wie dieses
Hier geht es zu unserem Impressum, den Allgemeinen Geschäftsbedingungen, den Hinweisen zum Datenschutz und nutzungsbasierter Online-Werbung.