




Haus zum Kauf385000 €1.305 €/m²14 Zimmer • 295 m² • 850 m² Grundstück
385000 €
1.305 €/m²
14 Zimmer • 295 m² • 850 m² Grundstück
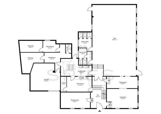
Gaststätte mit Saal und Zimmervermietung in direkter Wasserlage am "Knockster Tief" Nähe Emden
Merkmale
- Bezug: Nach Vereinbarung
- 850 m² Grundstück
- Raumaufteilung flexibel
- Denkmalschutz-Afa
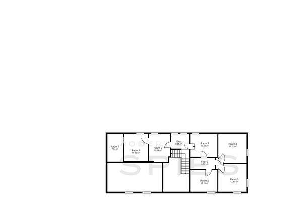
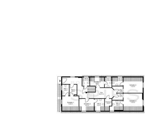
Grundrisse
Grundrisse
1 / 3
Realisiere Dein Projekt
Bausubstanz und Energie
Energieausweis
- Baujahr15. Jahundert /
- Zustand der ImmobilierenovierungsbedĂĽrftig / sanierungsbedĂĽrftig
Preisdetails
Kaufpreis
385000 €
1.305,08 €/m²
Provision für Käufer
5,95 % inkl. MwSt. vom Kaufpreis
Provisionspflichtig für den Käufer! Unsere Objektangaben basieren auf den uns erteilten Informationen. Eine Haftung für die Richtigkeit und Vollständigkeit können wir deshalb nicht übernehmen.
Provisionspflichtig für den Käufer! Unsere Objektangaben basieren auf den uns erteilten Informationen. Eine Haftung für die Richtigkeit und Vollständigkeit können wir deshalb nicht übernehmen.
Geschätzte Gesamtkosten
425.694 €1
Kaufpreis
385.000 €
Kaufnebenkosten
40.694 €
2Notarkosten (1,5%)
5.775 €
Grunderwerbsteuer (5%)
19.250 €
Provision für Käufer (3,57%)
13.744 €
Grundbucheintrag (0,5%)
1.925 €
1Der angezeigte Wert ist eine automatisch berechnete Schätzung von immowelt.
2Bei den Angaben handelt es sich um ortsübliche Werte. Individuelle Kosten können abweichen.
Lage

Hinte (26759)
Der Anbieter hat die genaue Adresse nicht freigegeben
Weitere Informationen
Weitere Services
Lust auf eine Besichtigung?
Eine Frage zur Immobilie?
Ăśber den Anbieter
Kleine KirchenstraĂźe 7, 26122 Oldenburg
Partnerschaft
Frau Claudia BahlmannDein Kontakt
Online-ID: 2hx6a5x
Referenznummer: 31985/1
Wie zufrieden bist du mit dieser Seite (nicht mit der Immobilie selbst)?



