
Hans Myslik GmbH
MYSLIK Hotline
43 ···
Nr. anzeigenPreise & Kosten
Provision für Käufer
provisionsfrei
Lage
Wohnen "Am Bach'l" in Hallwang ist mehr als nur ein Wohnort - es ist der Inbegriff von Lebensqualität in bester Lage. Nur ein kurzer Spaziergang zum Bahnhof Hallwang trennen Sie von der kulturellen Vielfalt und dem pulsierenden Leben der Mozartstadt Salzburg.
Trotz der unmittelbaren Nähe zum urbanen Treiben genießen...
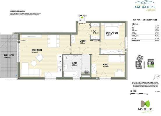
Die Wohnung
Wohnanlage
Energie & Heizung
Warum sehe ich diese Anzeige? – Du siehst diese Anzeige basierend auf Ihrer Navigation auf unserer Website und den Suchkriterien, die du verwendet hast.
Heizwärmebedarf (HWB)
42,00 kWh/(m²·a)
Gesamtenergieeffizienz (fGEE)
0,79
Weitere Energiedaten
Energieträger
Pellets
Details
Objektbeschreibung
*** Es geht los! Baubeginn erfolgt. ***
Die modernen 2- bis 3-Zimmer-Wohnungen sind speziell auf die Bedürfnisse von Singles, Paaren und jungen Familien zugeschnitten. Hier vereinen sich die Vorteile urbanen Lebens mit dem Charme der Salzburger Naturlandschaft - ein Zuhause, das keine Wünsche offenlässt.
Mit...
Ausstattung
Elegantes und hochwertiges Wohlfühl-Wohnen wird durch den warmen Eichenparkettboden aus heimischen Wäldern und die moderne Fußbodenheizung unterstützt. Die klar definierten, hellen Bäder mit zeitlosen Markenarmaturen runden das Angebot ab. Eine Pelletheizung mit PV-Anlage sorgt für eine effiziente und nachhaltige Heizlösung...
Preisinformation
2 Tiefgaragenstellplätze, Kaufpreis je: 30.000,00 EUR
Weitere Informationen
Stichworte
Anzahl der Schlafzimmer: 2, Anzahl der Badezimmer: 1, Anzahl Balkone: 1, Balkon-Terrassen-Fläche: 10,79 m²
Anbieter der Immobilie
Hans Myslik GmbH
Adolf-Schemel-Str. 23, 5020 SALZBURG
Online-ID: 2hyac5n
Referenznummer: MY-AmBachl_A04
Finde Angebote wie dieses
Günstige Immobilienfinanzierung einfach online berechnen
Persönliches Angebot berechnenWarum sehe ich diese Werbung? – Du siehst diese Werbung basierend auf Deiner Navigation auf unserer Website und der von Dir verwendeten Suchkriterien.
Diese Werbung wird bezahlt von durchblicker
Werbung melden
Hier geht es zu unserem Impressum, den Allgemeinen Geschäftsbedingungen, den Hinweisen zum Datenschutz und nutzungsbasierter Online-Werbung.